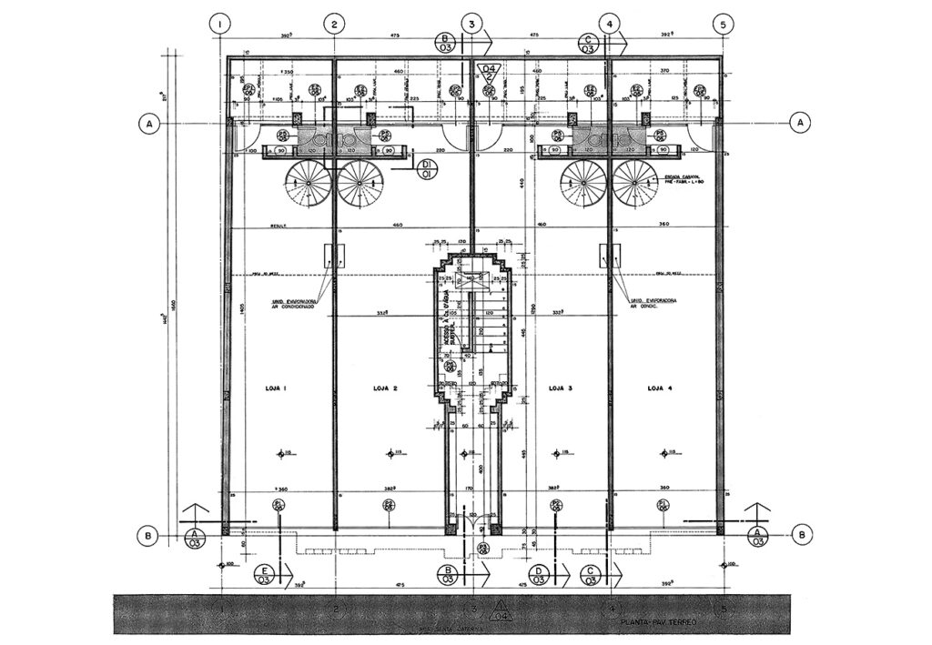
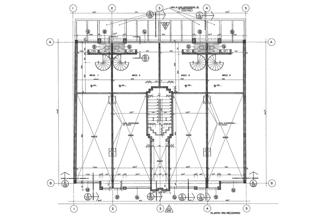
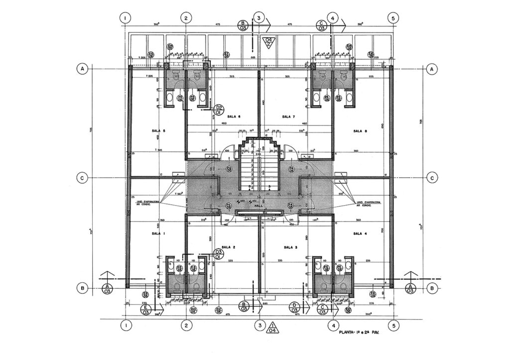
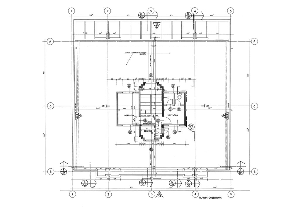
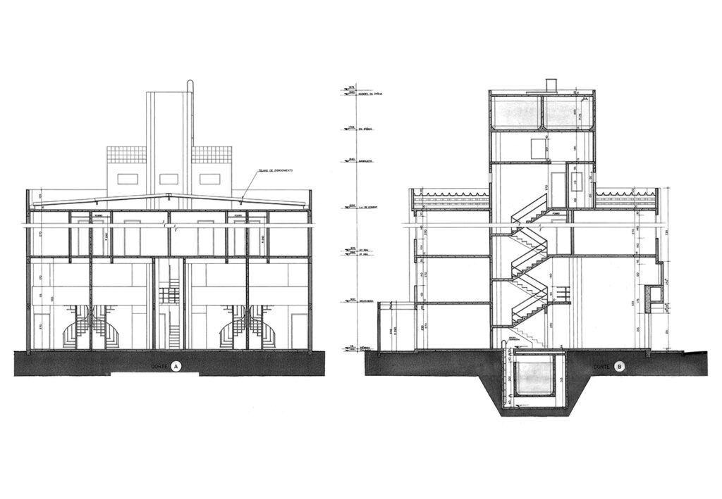
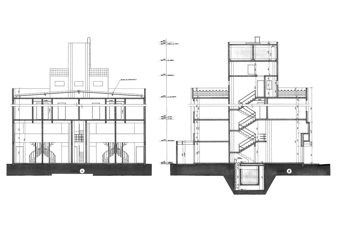
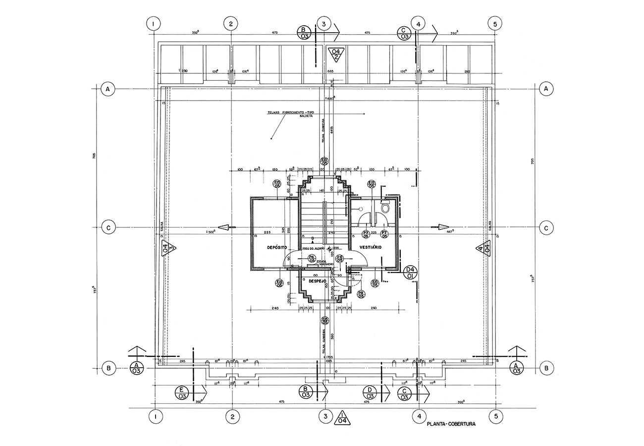
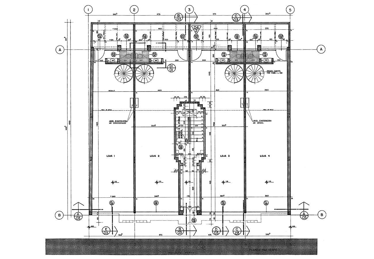
Edifício Comercial Victório Vincenzi
Rua Santa Catarina, Centro – São Caetano do Sul – SP
DESCRIÇÃO
- Projeto: 1986
- Conclusão da Obra: 1998
- Área do Terreno: 283,44 m2
- Área Construída: 873,35 m2
- Construção: Construtora Lorenzini e Construtora Habiplan Construções e Empreendimentos Imobiliário Ltda.
















