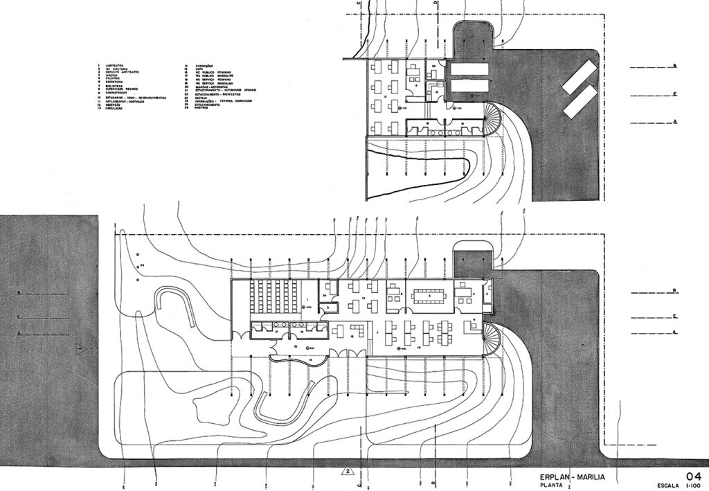
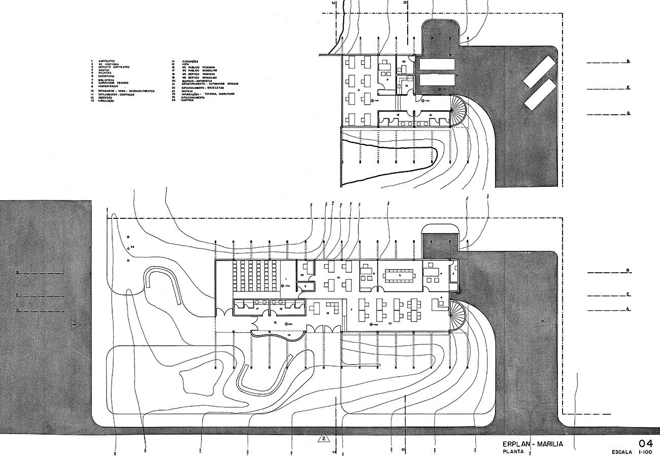
Concurso para o edifício-sede do Escritório Regional de Planejamento (ERPLAN)
Marília – SP
DESCRIÇÃO
- Projeto: 1976
- Arquitetos: Douglas Piccolo, Roberto Rondino e Sylvio de Ulhoa Cintra
- 3º lugar no concurso para o edifício-sede do Escritório Regional de Planejamento (ERPLAN) da Secretaria de Planejamento do Estado de São Paulo, Marília – São Paulo








