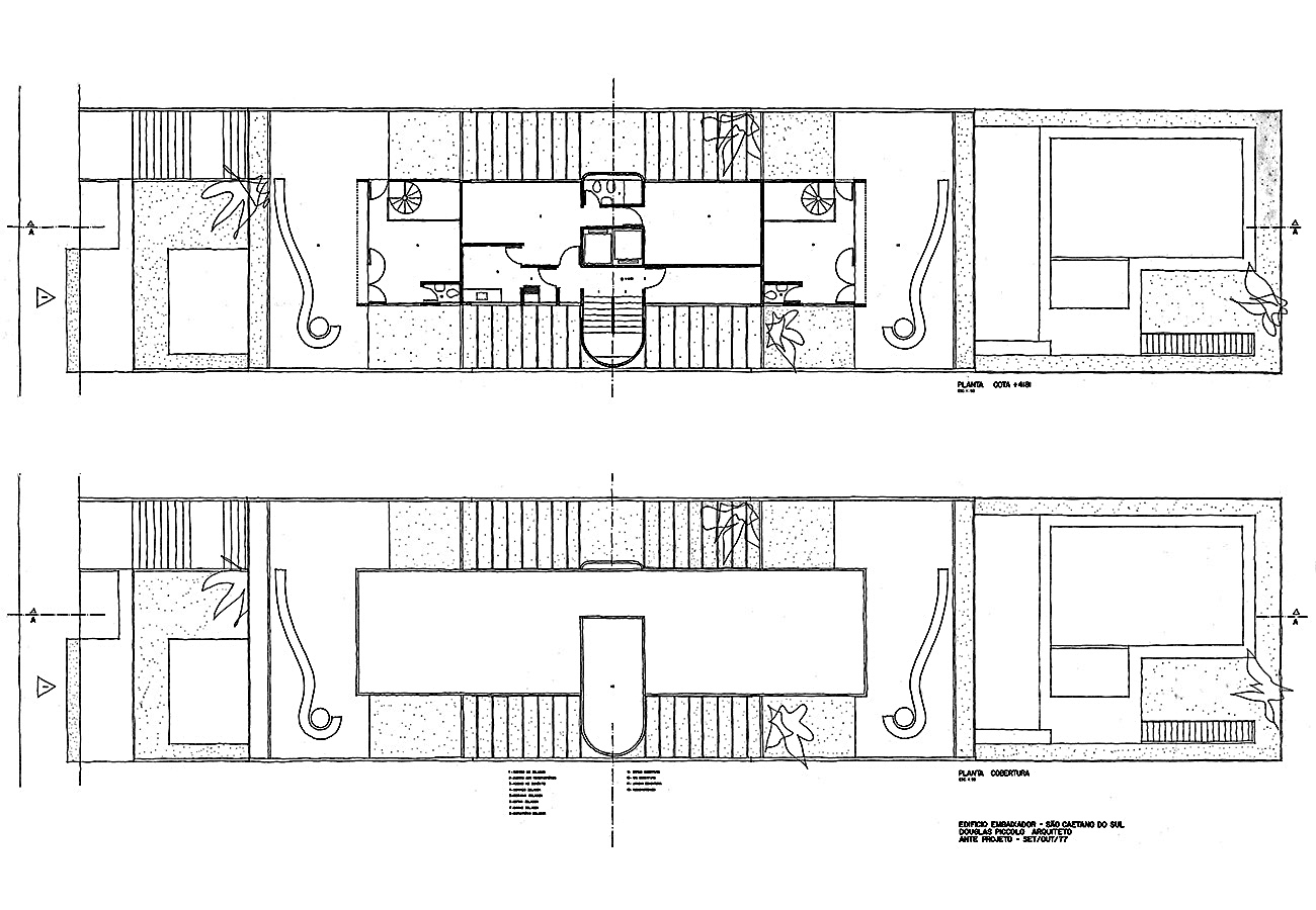
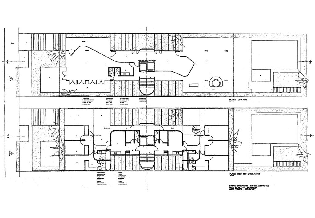
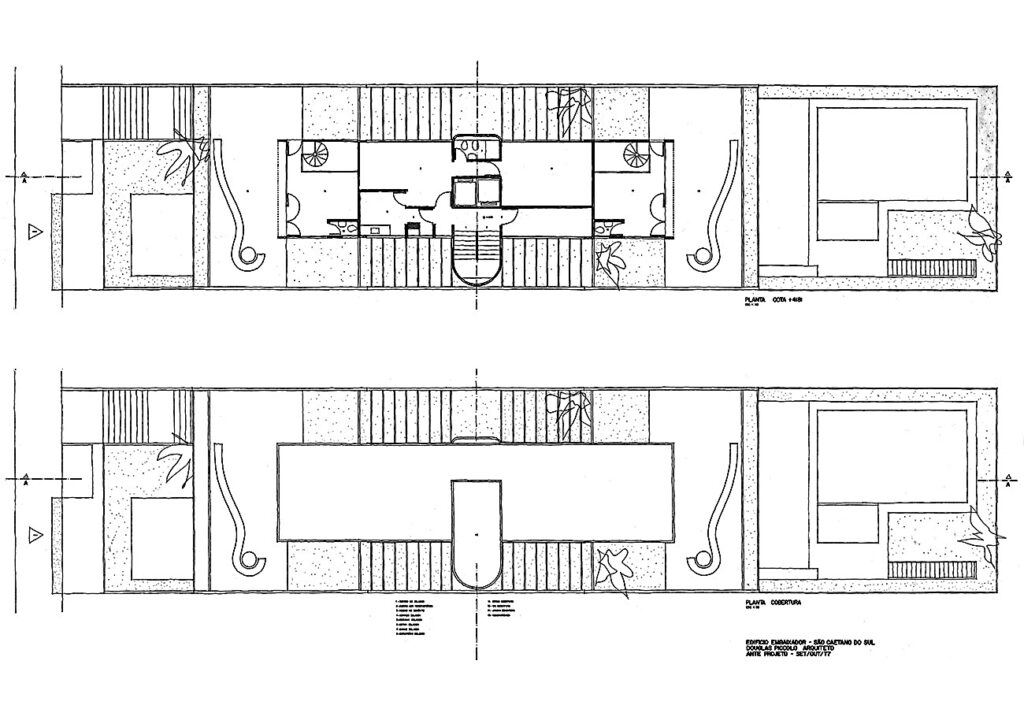
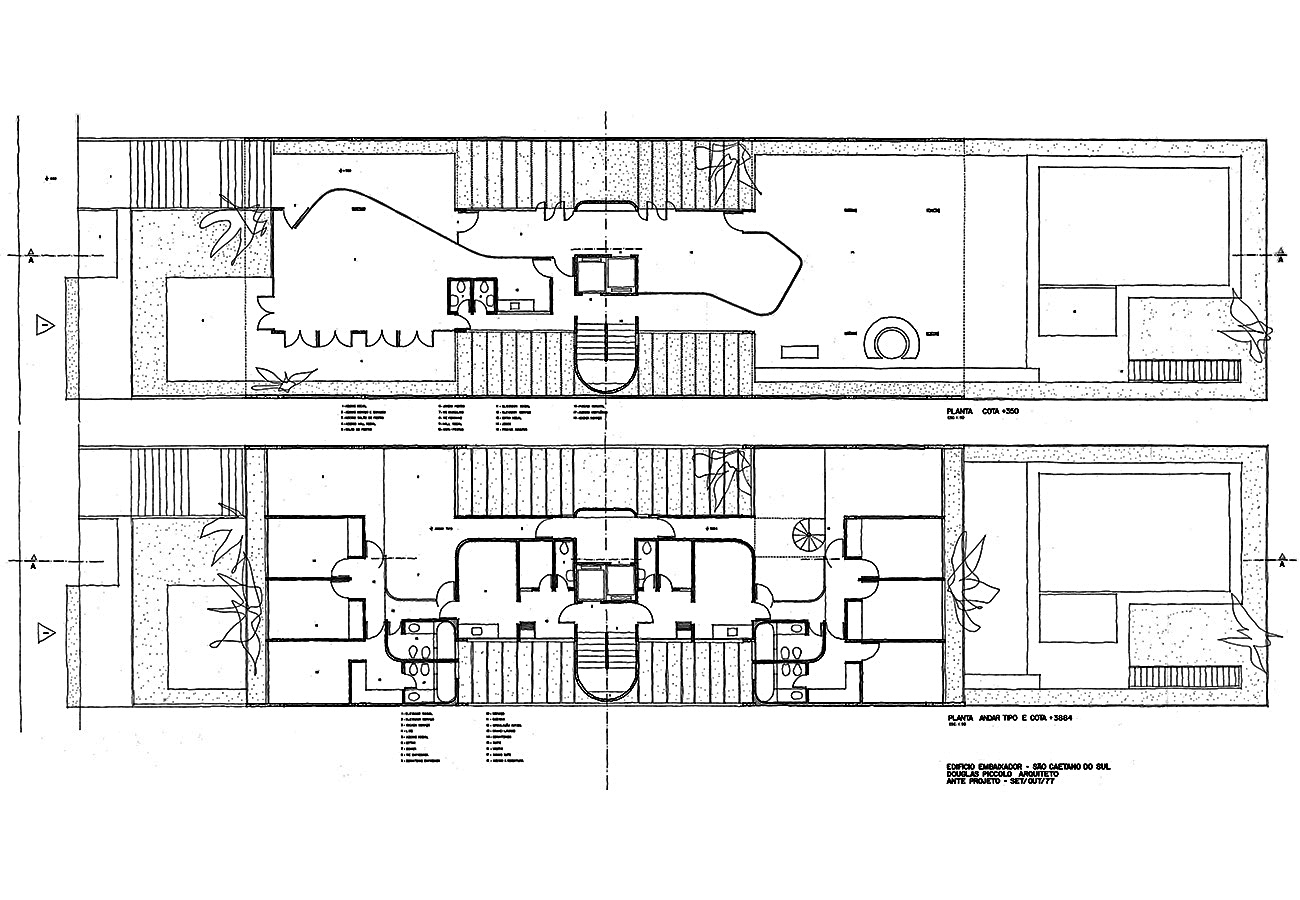
EDIFÍCIO EMBAIXADOR

Edifício Embaixador

São Caetano do Sul – SP

DESCRIÇÃO

  • Projeto: Setembro/ Outubro 1977
  • Conclusão da Obra: não concluído