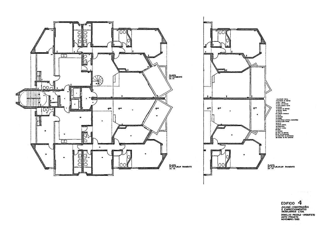
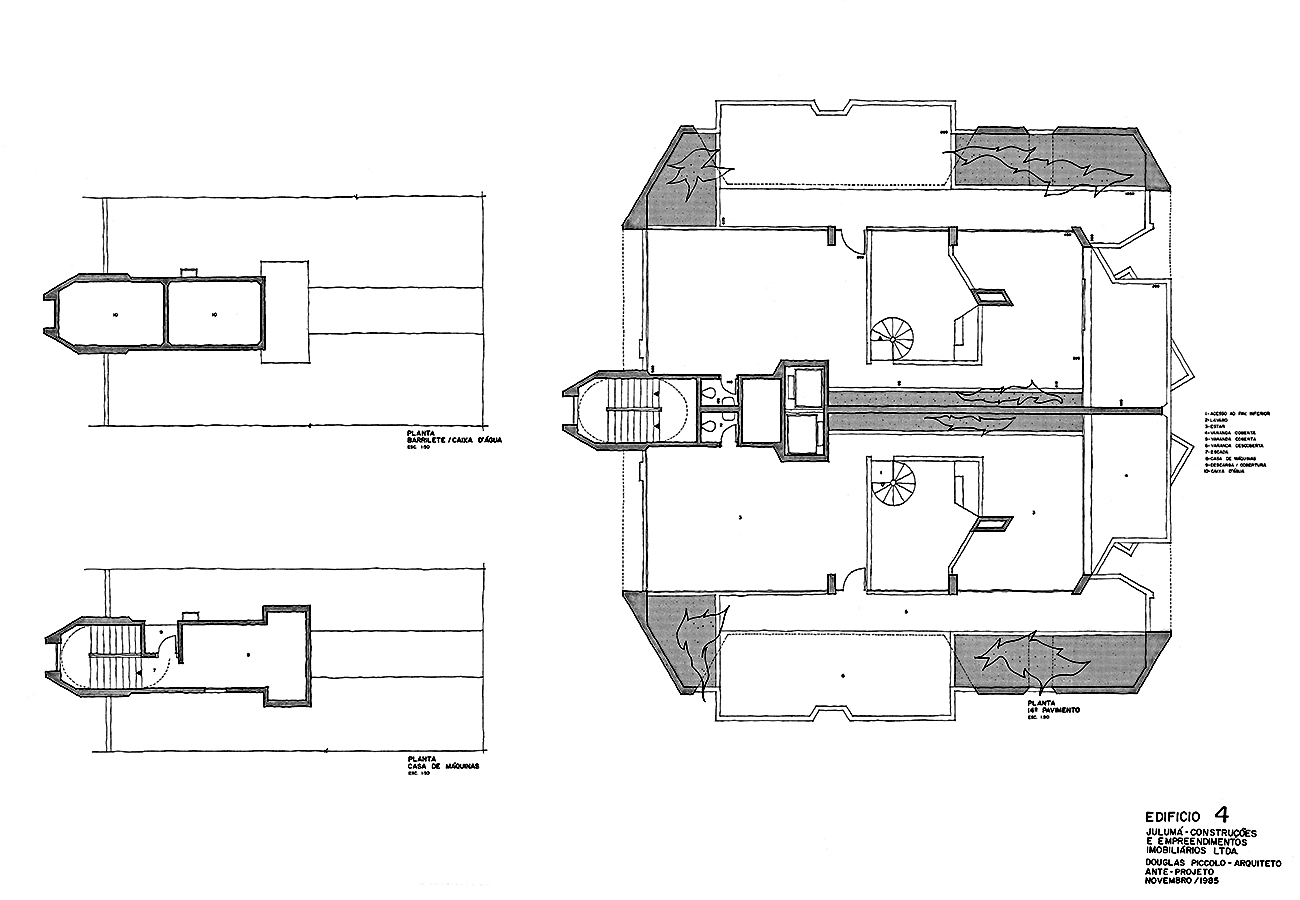
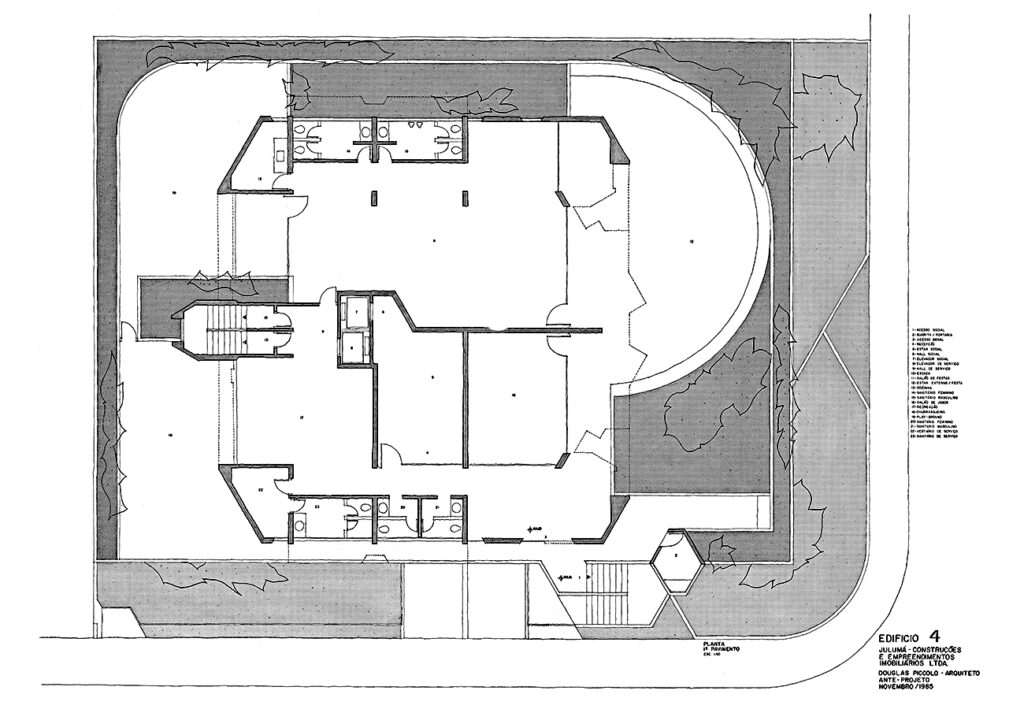
Edifícios Residenciais / Residencial EDIFÍCIO MORADA AZUL Edifício Morada Azul São Bernardo do Campo – SP DESCRIÇÃO Projeto: 1985 Conclusão da Obra: 1995 Área do Terreno: 1.213,90m2 Área Construída: 8.254,20m2 24 apartamentos