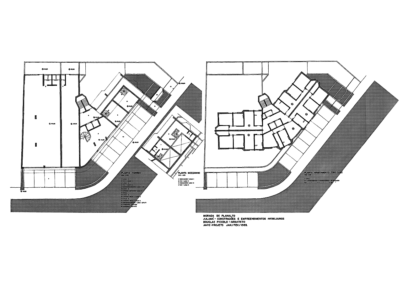
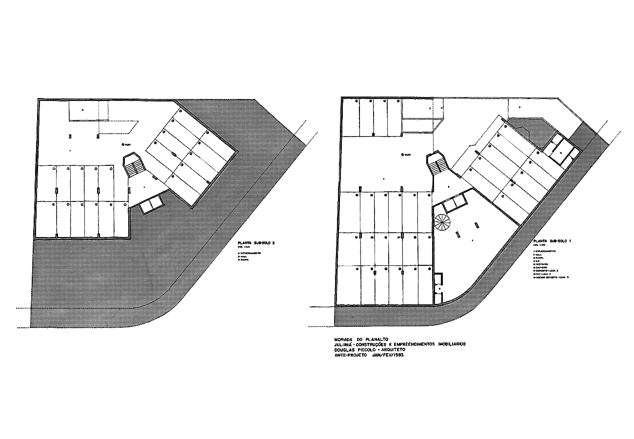
Edifícios Residenciais / Residencial EDIFÍCIO MORADA DO PLANALTO Edifício Morada do Planalto São Bernardo do Campo – SP DESCRIÇÃO Projeto: Janeiro/ Fevereiro 1983 Conclusão da Obra: não concluído