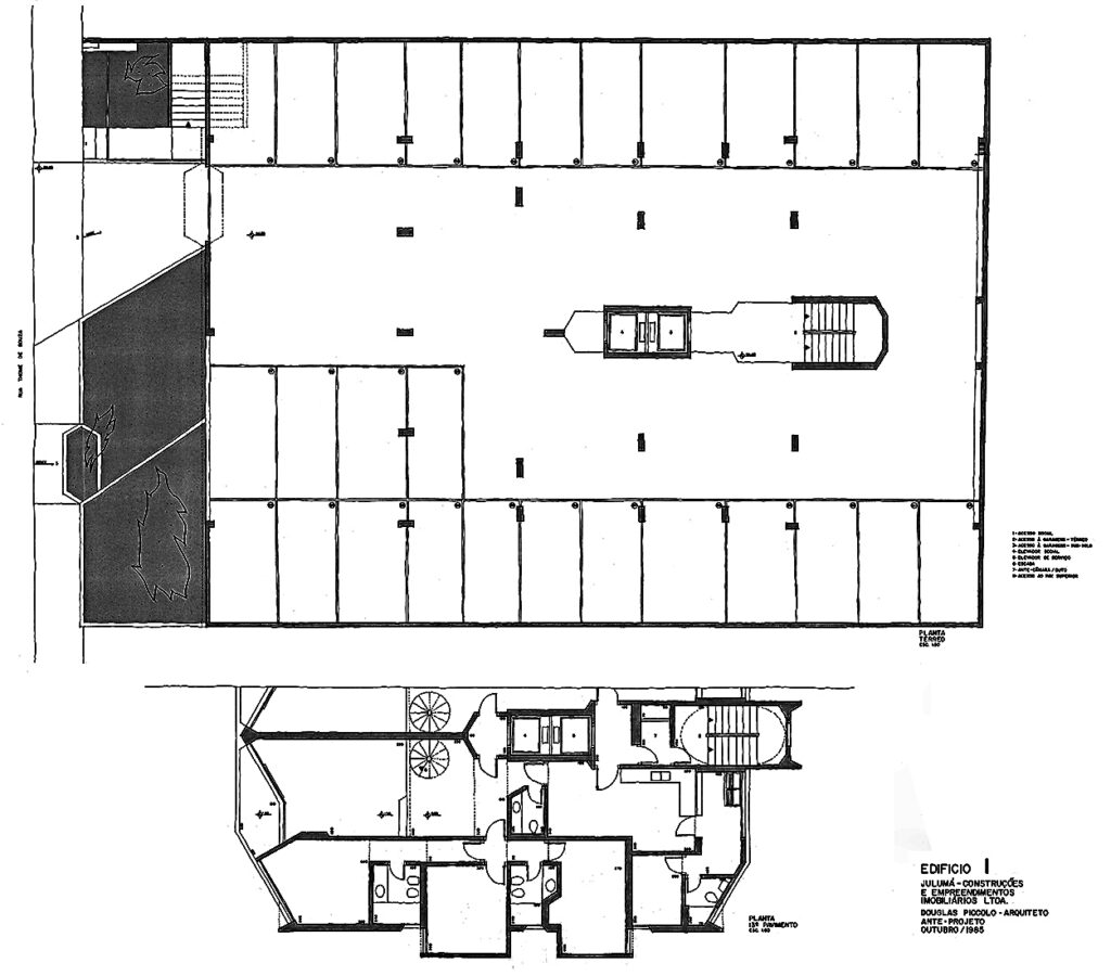
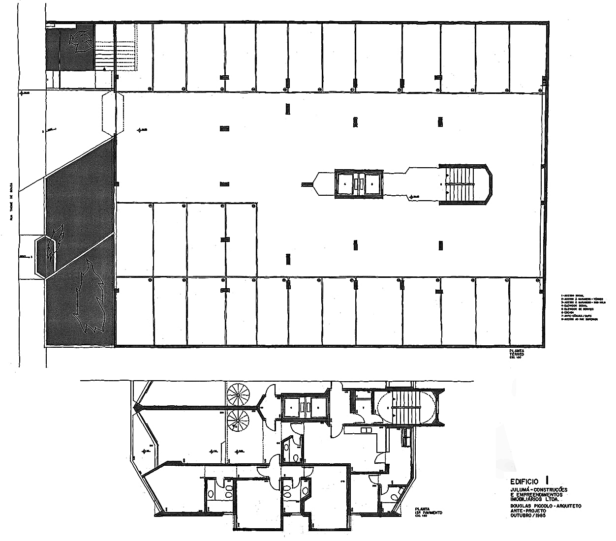
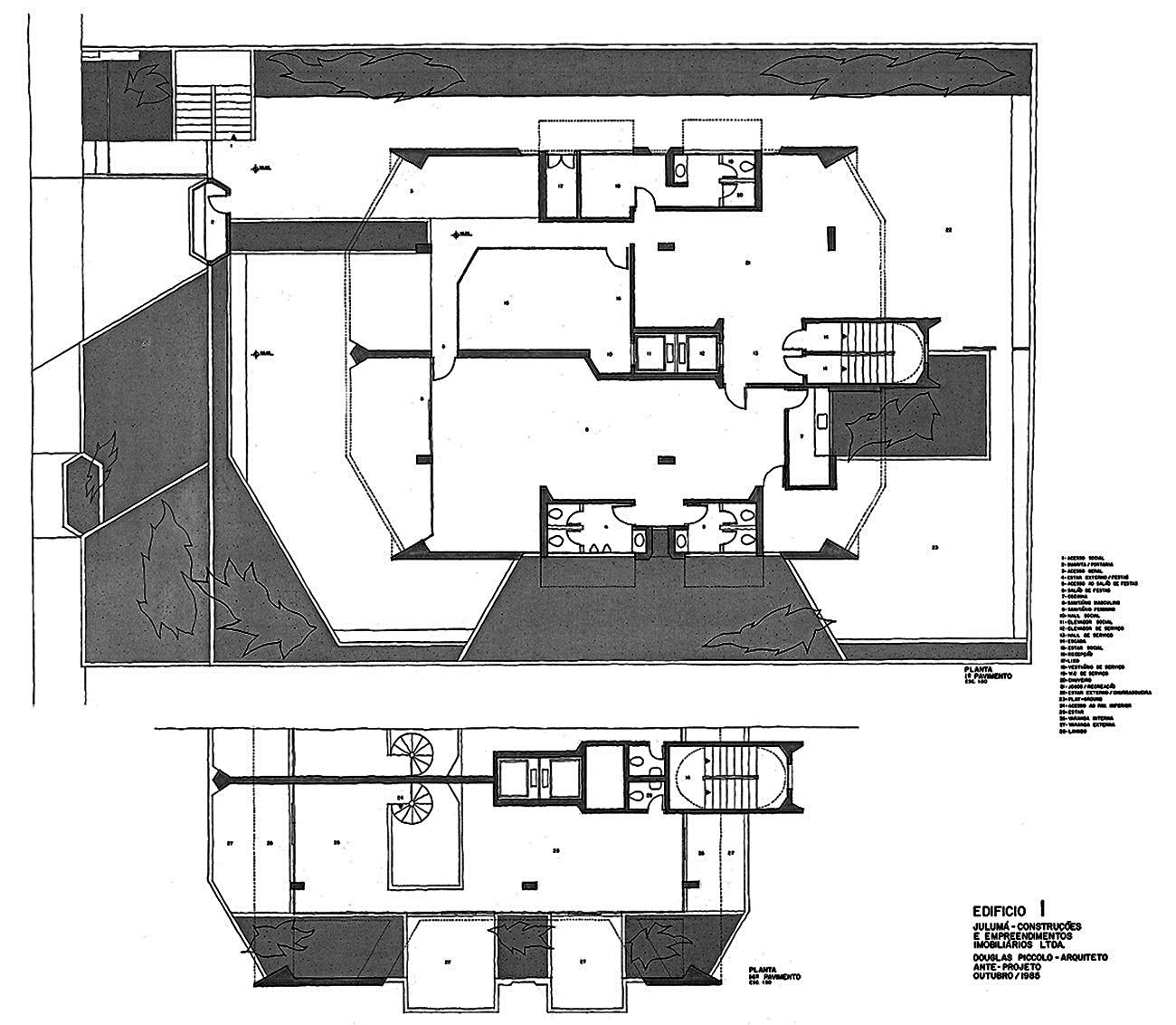
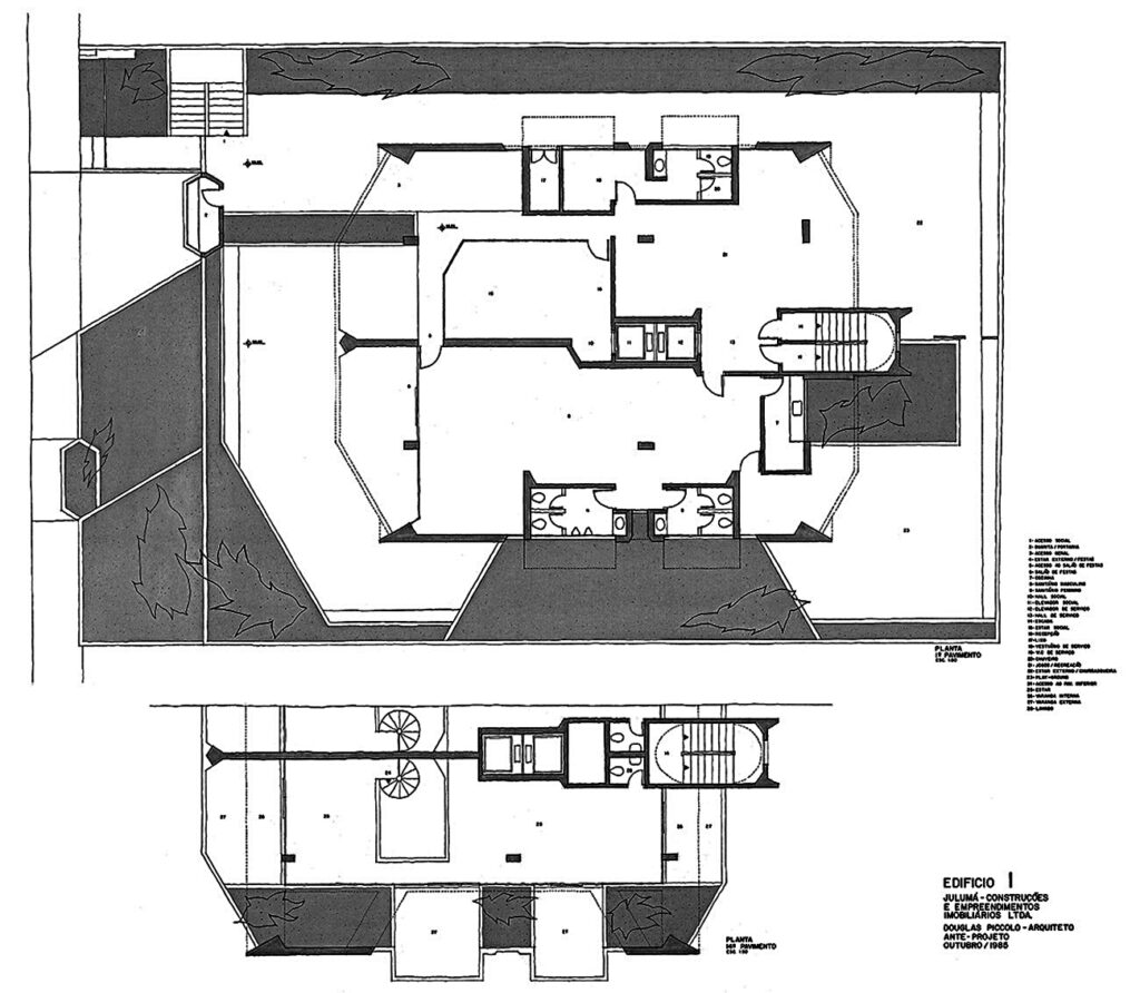
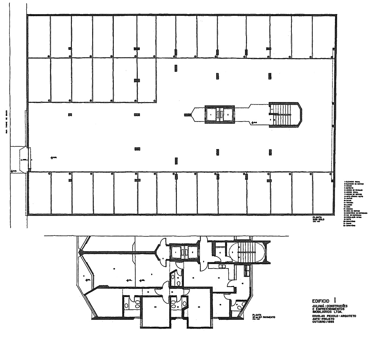
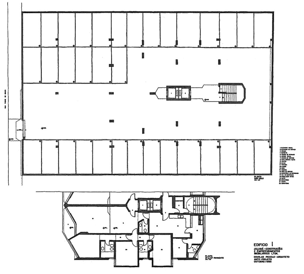
EDIFÍCIO RESIDENCIAL CASA AMARELA

Edifício Residencial Casa Amarela

São Bernardo do Campo – SP

DESCRIÇÃO

  • Projeto: 1985
  • Conclusão da Obra: 1995
  • Área do Terreno: 896,40 m2
  • Área Construída: 6.300,95 m2
  • 24 apartamentos