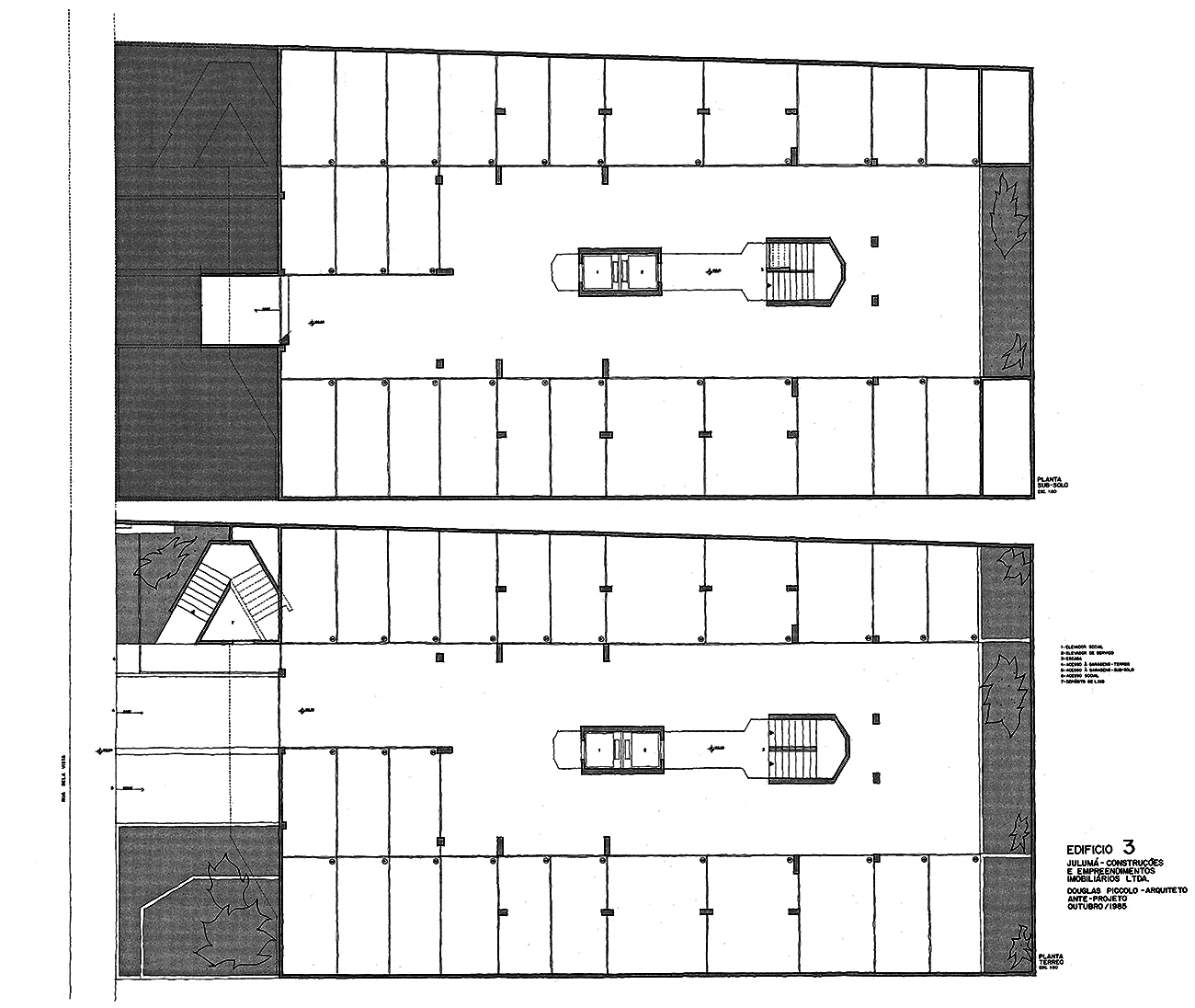
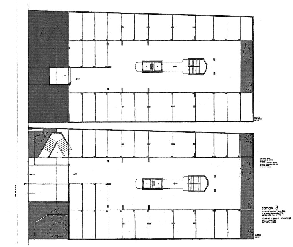
EDIFÍCIO RESIDENCIAL SOLAR VERMELHO

Edifício Residencial Solar Vermelho

São Bernardo do Campo – SP

DESCRIÇÃO

  • Projeto: 1985
  • Conclusão da Obra: 1993
  • Área do Terreno: 803,00 m2
  • Área Construída: 4.978,25 m2
  • 24 apartamentos