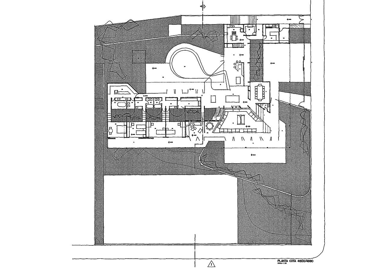
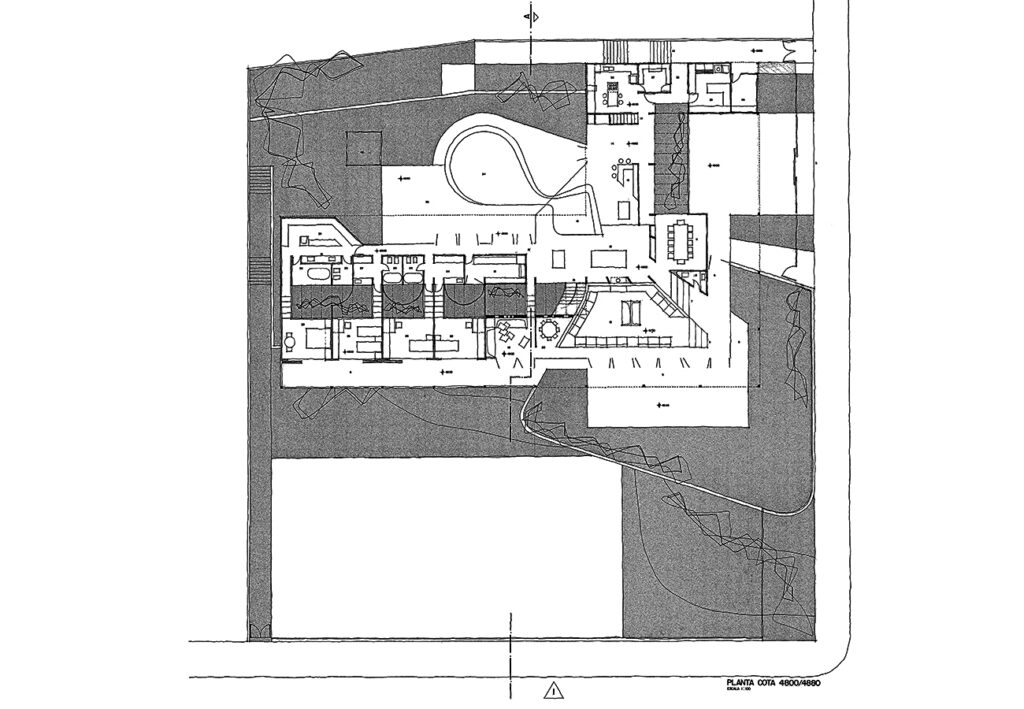
Residencial / Residencias Unifamiliares RESIDÊNCIA AA I RESIDÊNCIA AA I Criciuma – SC DESCRIÇÃO Projeto: Janeiro 1979 Conclusão da Obra: Dezembro 1981 Área do Terreno: m2 Área Construída: m2