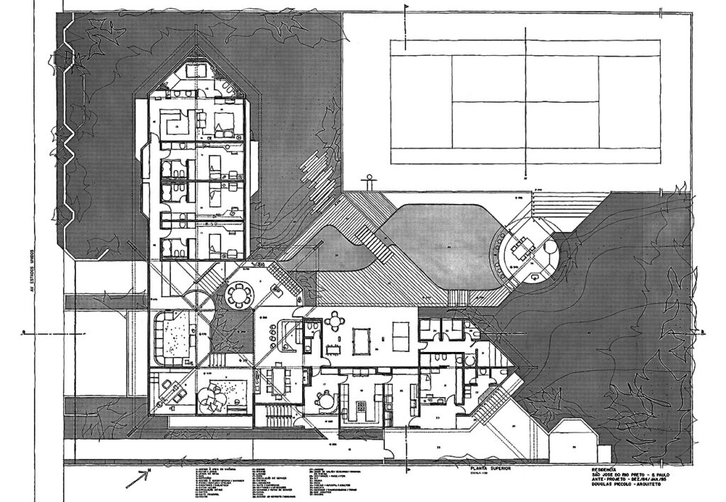
Residencial / Residencias Unifamiliares RESIDÊNCIA AFJ I Residência AFJ I São José do Rio Preto – SP DESCRIÇÃO Projeto: 1984 Conclusão da Obra: 1986 Área do Terreno: 2.240,00 m2 Área Construída: 737,70 m2