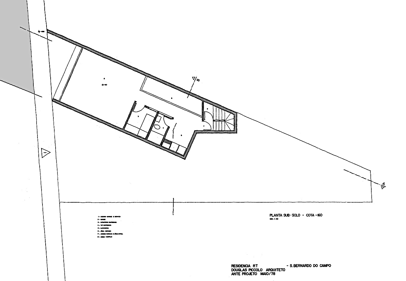
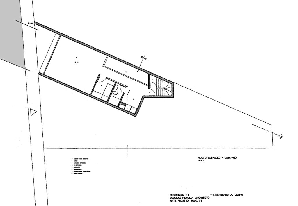
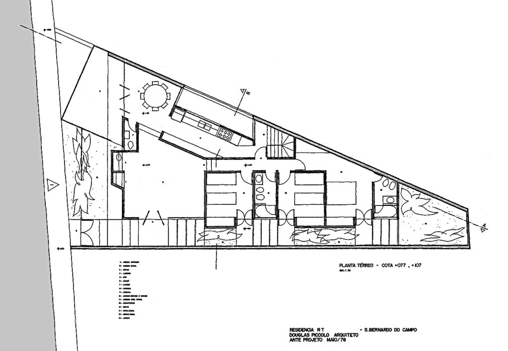
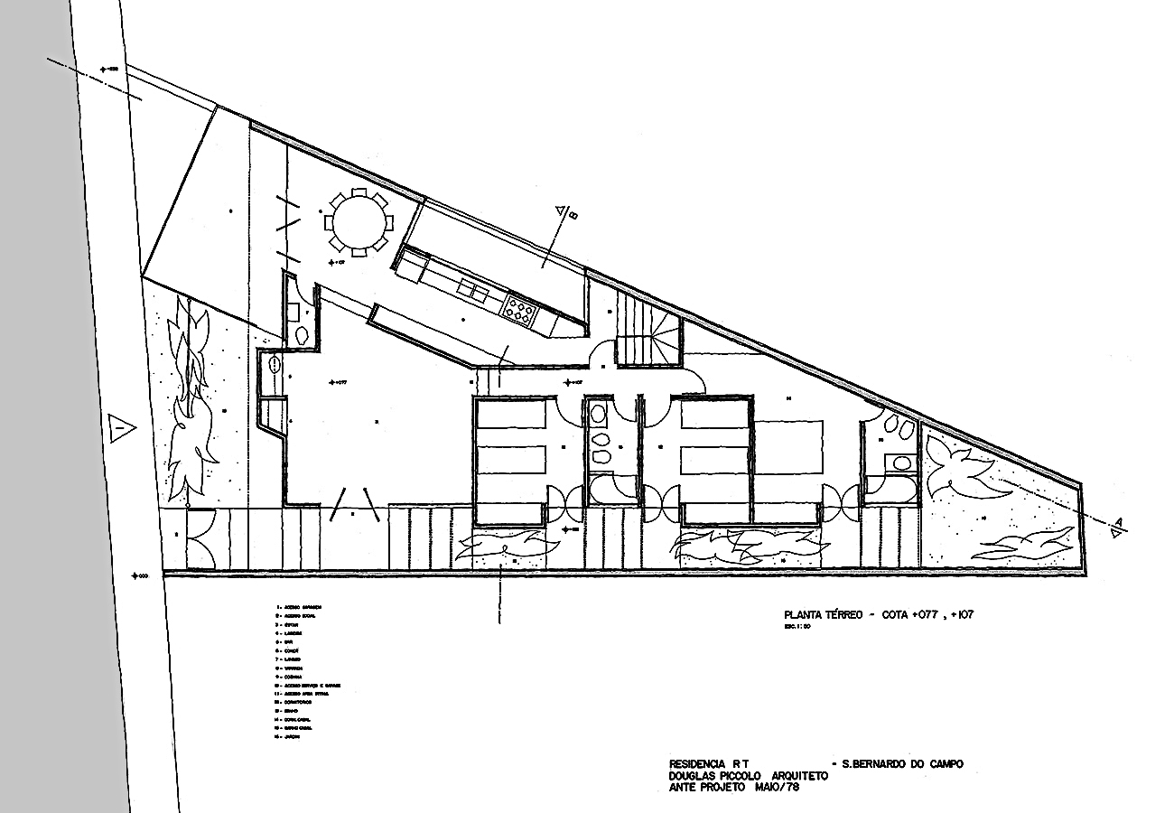
Residencial / Residencias Unifamiliares RESIDÊNCIA RT III Residência RT III São Bernardo do Campo – SP DESCRIÇÃO Projeto: 1978 Conclusão da Obra: não construído Área do Terreno: 243,00 m2 Área Construída: 220,16 m2