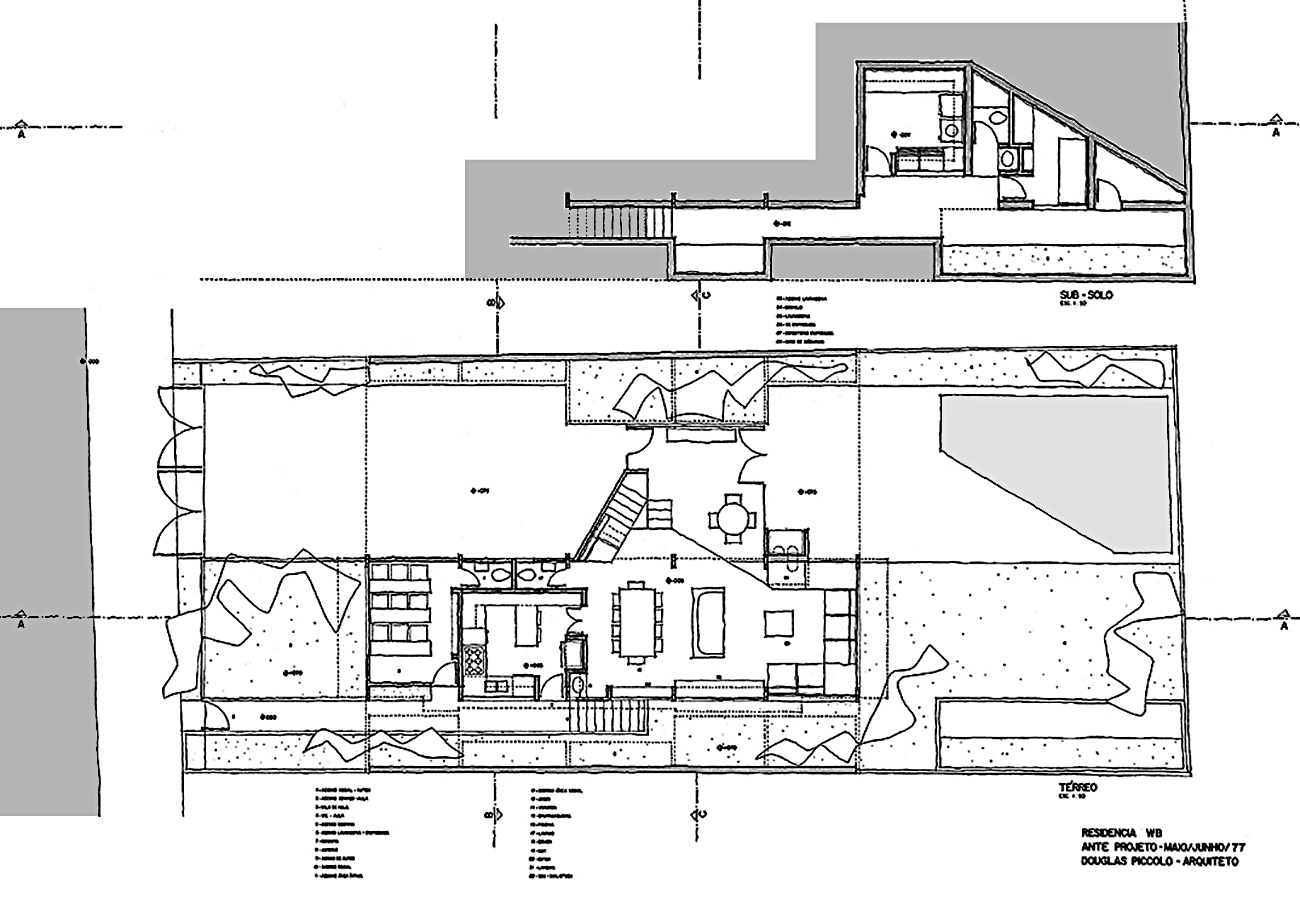
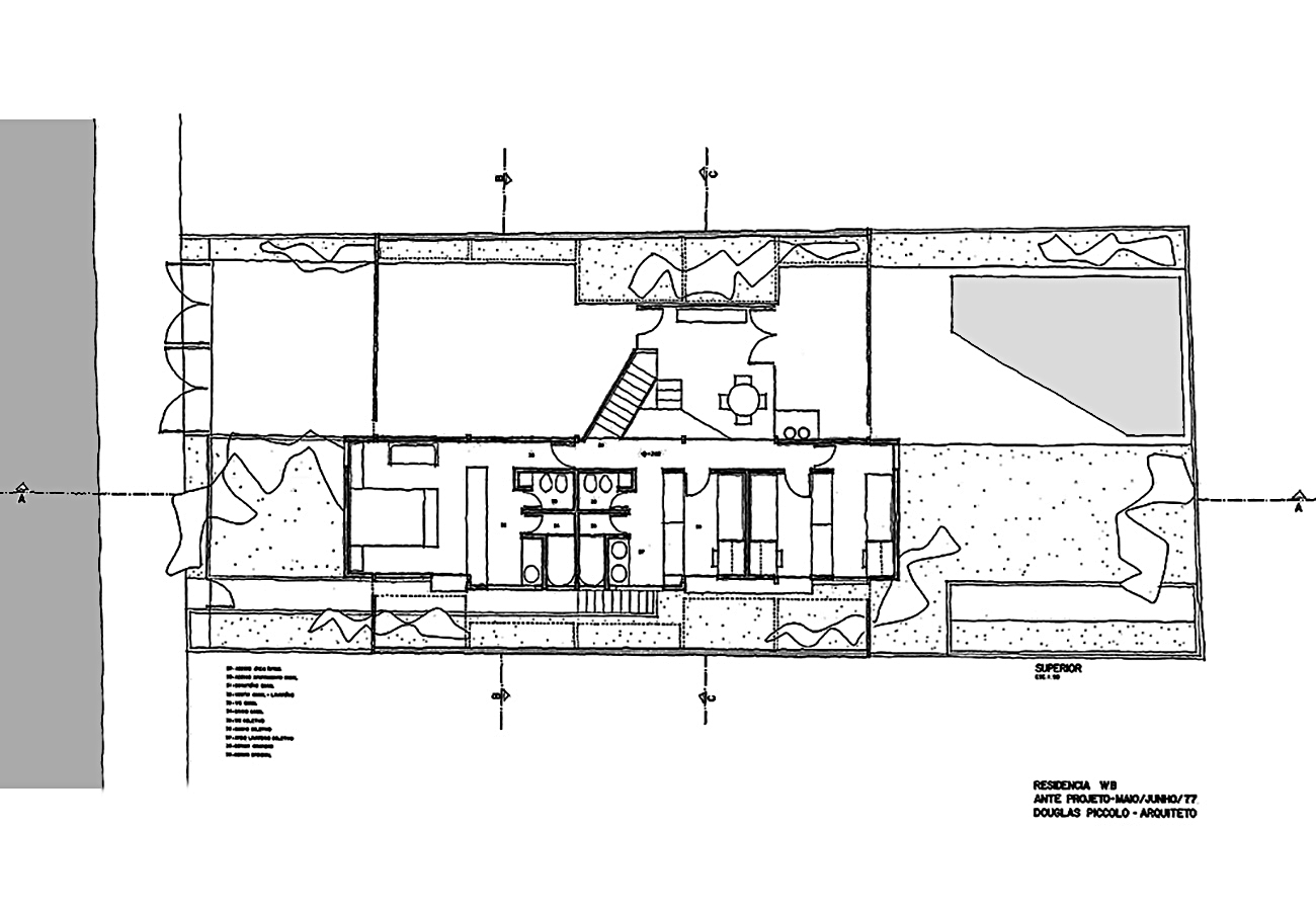
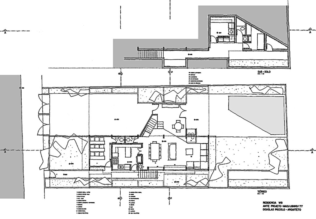
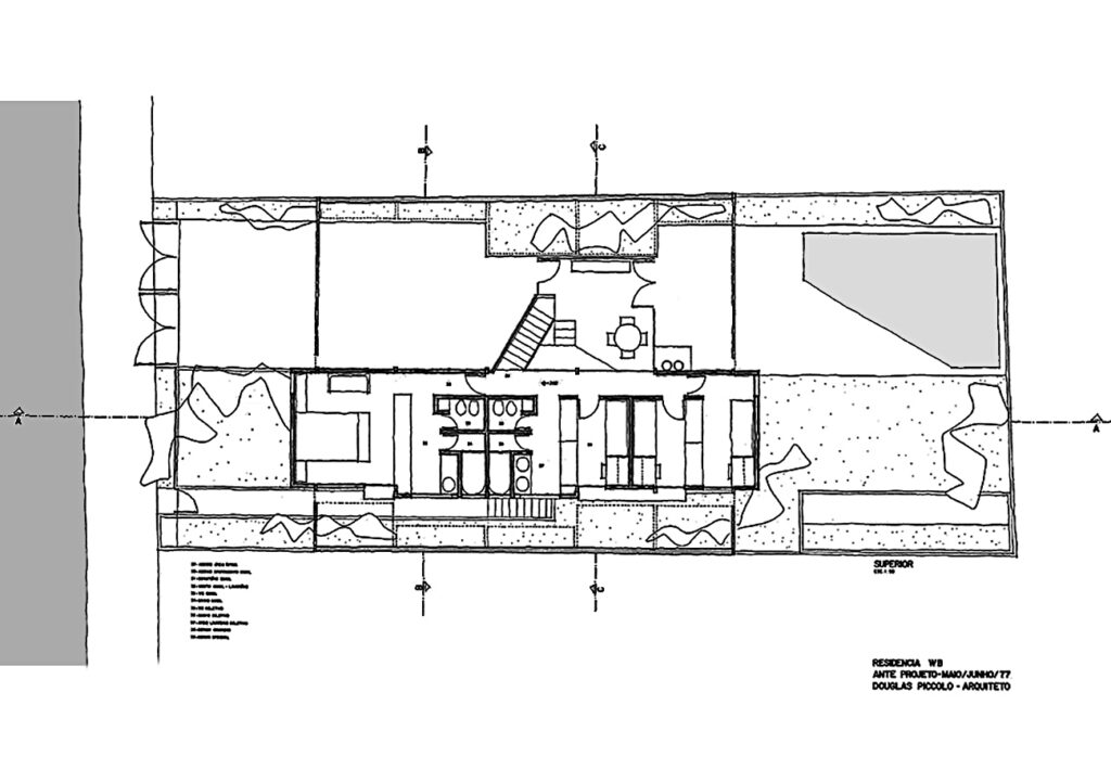
Residencial / Residencias Unifamiliares RESIDÊNCIA WB Residência WB Jardim São Caetano, São Caetano do Sul – SP DESCRIÇÃO Projeto: 1977 Conclusão da Obra: 1978 Área do Terreno: 360,00 m2 Área Construída: 234,48 m2