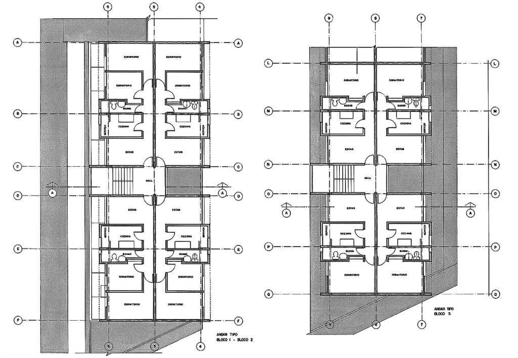
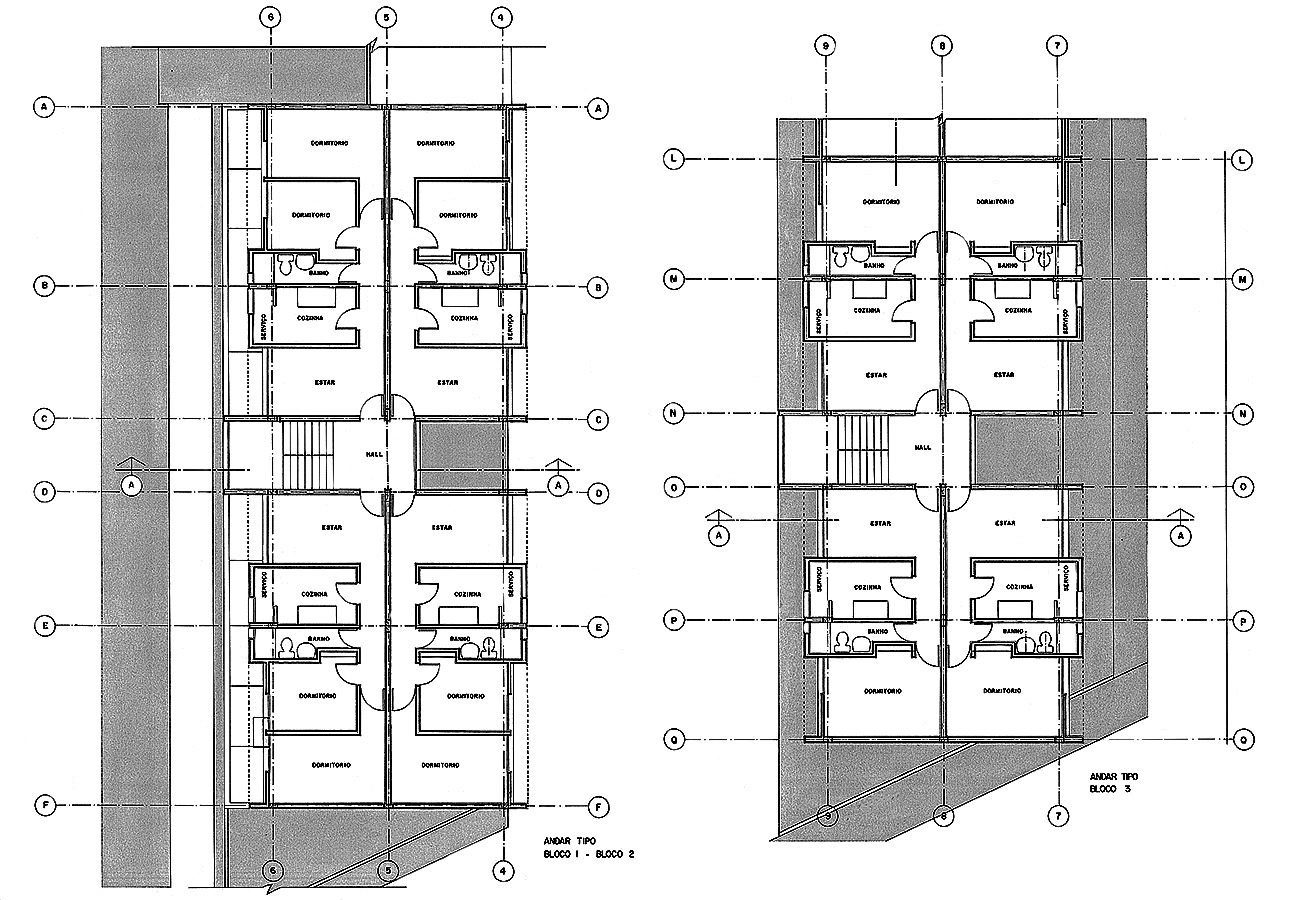
Edifícios Residenciais / Residencial RESIDENCIAL NOVA PAULICÉIA Residencial Nova Paulicéia Rua MMDC, Vila Paulicéia, São Bernardo do Campo – SP DESCRIÇÃO Projeto: 1981 Conclusão da Obra: não construído Área do Terreno: 4.221,25m2 Área Construída: 3.772,90m2 Maquete Física: Ademir Fogaça