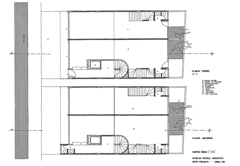
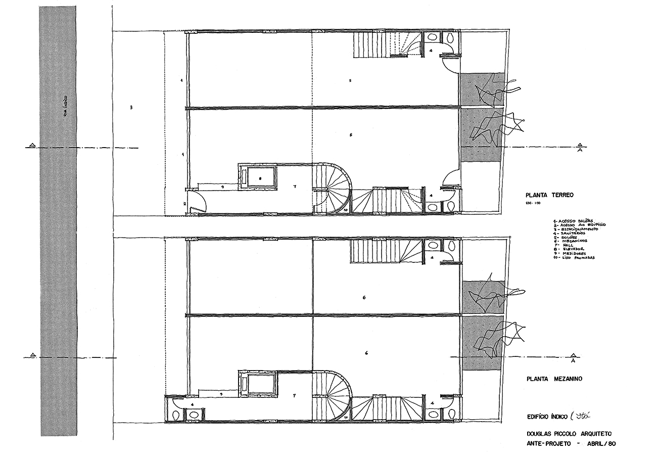
Comercial / Edifícios Coorporativos EDIFÍCIO ITA/ EDIFÍCIO ITAMAR Edifício Ita/ Edifício Itamar Avenida Índico, 66, 70, 80 e 86 – Jardim do Mar, São Bernardo do Campo – SP DESCRIÇÃO Projeto: 1980 Conclusão da Obra: 1983 Área do Terreno: 430,00 m2 Área Construída: 2.130,00 m2