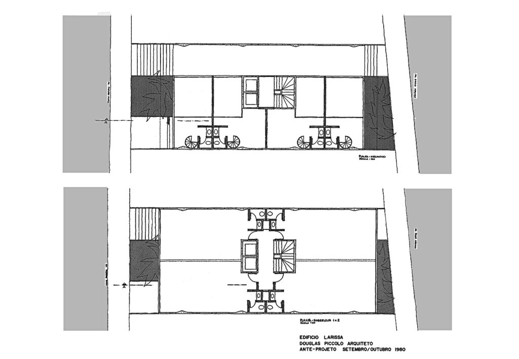
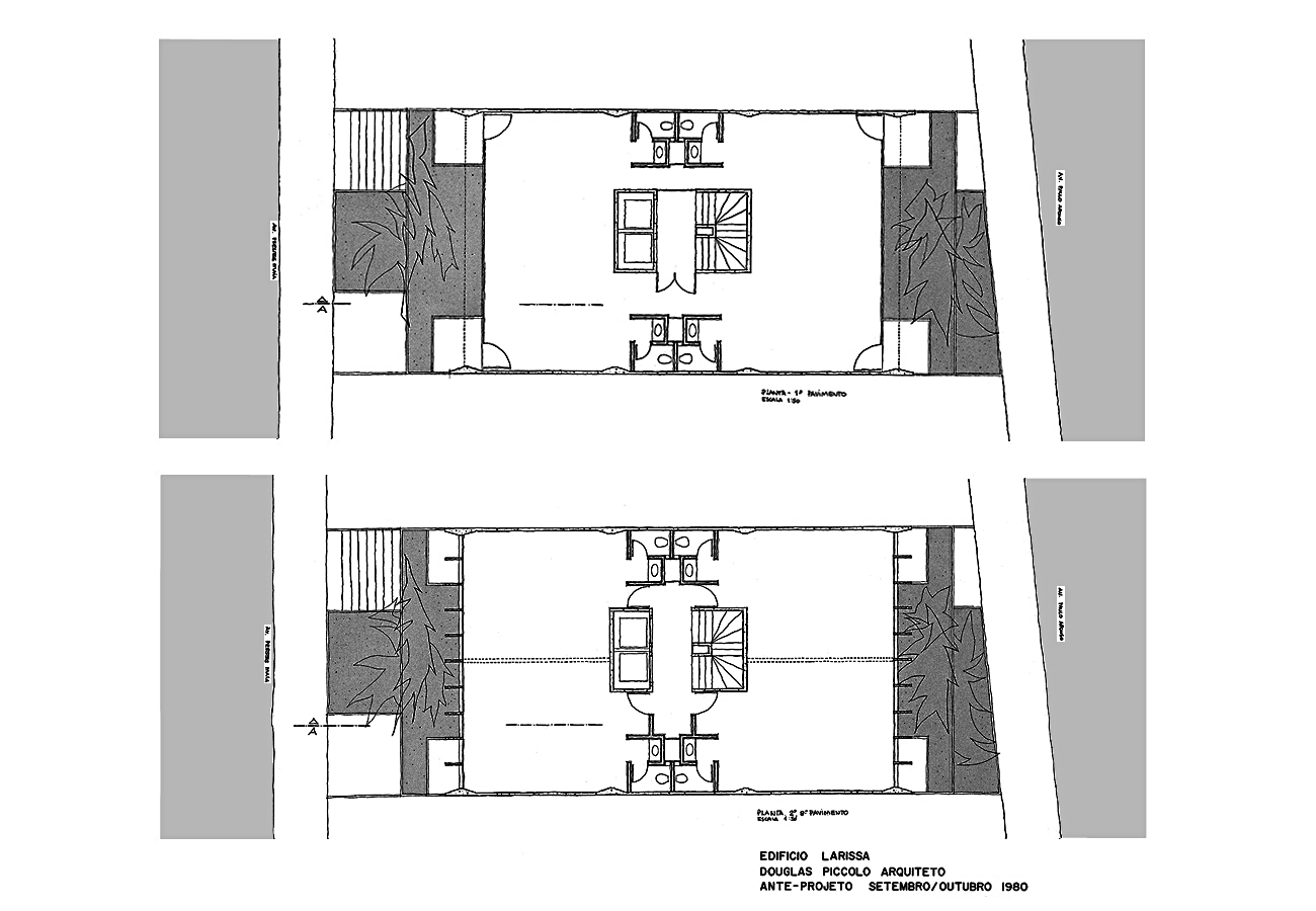
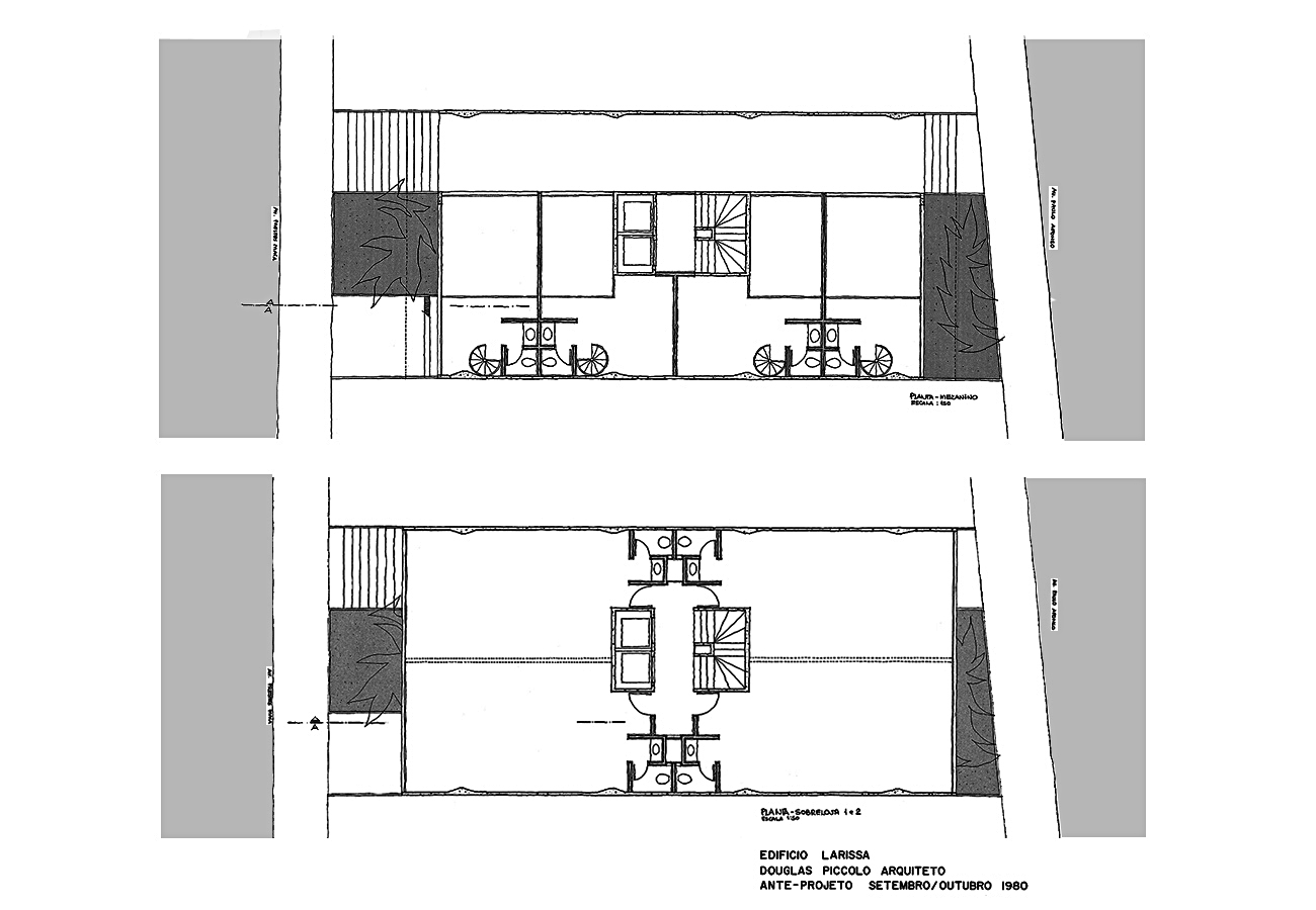
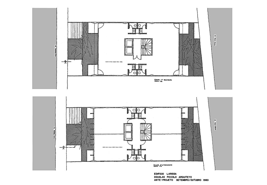
EDIFÍCIO LARISSA

Edifício Larissa

São Bernardo do Campo – SP

DESCRIÇÃO

  • Projeto: Setembro/ Outubro 1980
  • Conclusão da Obra: não concluído
  • Área do Terreno: 250,00 m2
  • Área Construída: 1.611,00 m2
  • Endereço: Av. Prestes Maia X Av. Paulo Afonso