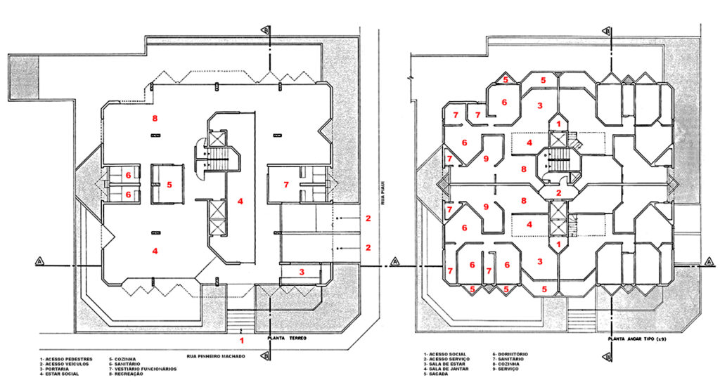
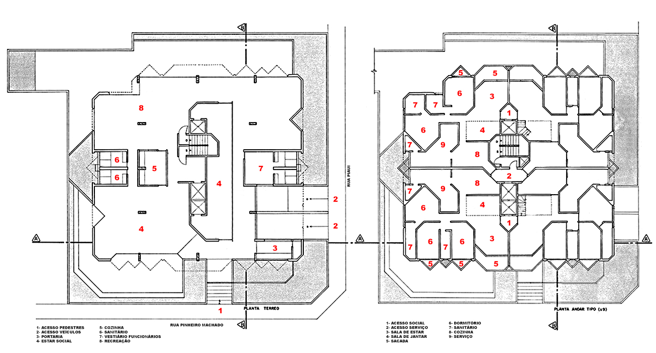
EDIFÍCIO RESIDENCIAL MANSÃO TURMALINAS

Edifício Residencial Mansão das Turmalinas

Vila Paula, São Caetano do Sul – SP

DESCRIÇÃO

  • Projeto: 1986
  • Conclusão da Obra: não construído
  • Área do Terreno: 997,70 m2
  • Área Construída: 8.006,90 m2
  • 36 unidades