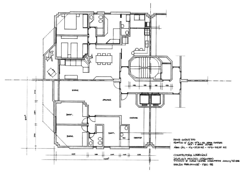
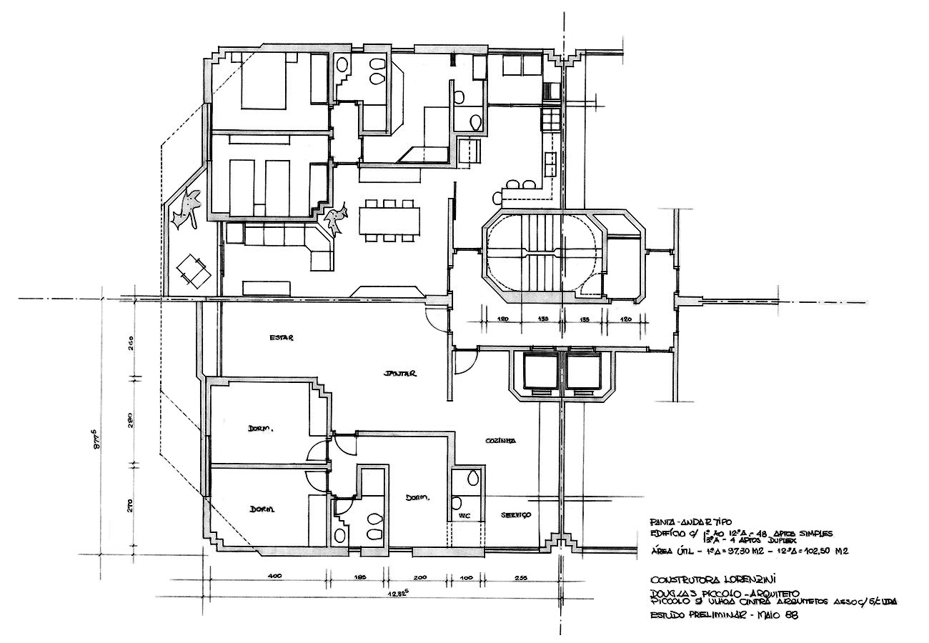
Residencial Mansão Dourada – Versão 02
São Caetano do Sul – SP
DESCRIÇÃO
- Projeto: 1986
- Conclusão da Obra: não construído
- Área do Terreno: m2
- Área Construída: m2
- Edifício residencial implantado em terreno com dimensões reduzidas em um dos melhores bairros de São Caetano do Sul; Vila Barcelona.
- Projeto de 1986, construído a preço de custo pela Construtora Lorenzini que este ano (2016) completa 60 anos. Utilização de acabamentos que se consolidam e preservam a plasticidade, estética e definições cromáticas original.




