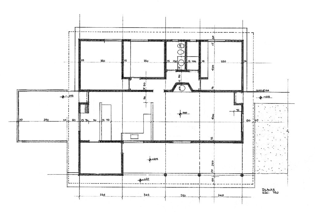
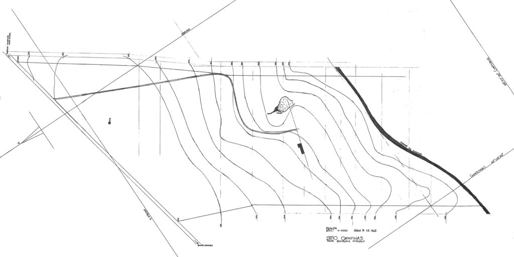
Residencial / Residencias Unifamiliares ESTÂNCIA FACICI – 1987 Estância Facici Barão Geraldo, Guará – Campinas – SP DESCRIÇÃO Projeto: 1985 / 1986 Conclusão da Obra: 1987