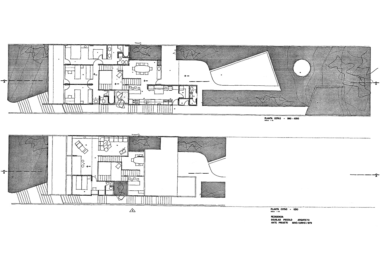
Residencial / Residencias Unifamiliares RESIDÊNCIA JFF Residência JFF Santo André – SP DESCRIÇÃO Projeto: 1979 Conclusão da Obra: 1981 Área do Terreno: 798,20 m² Área Construída: 338,52 m²