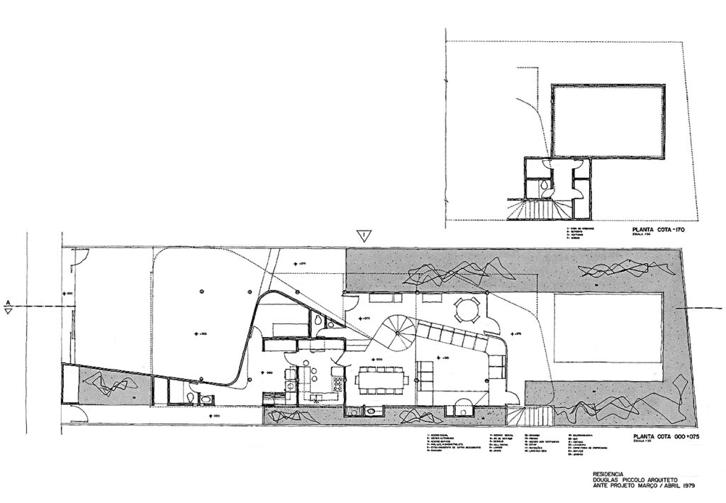
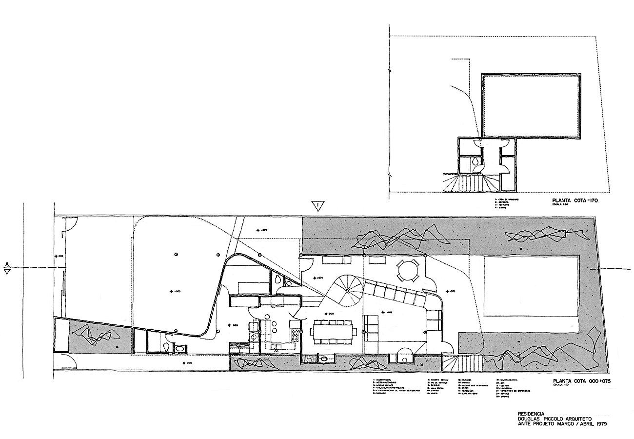
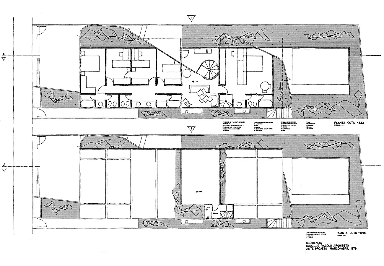
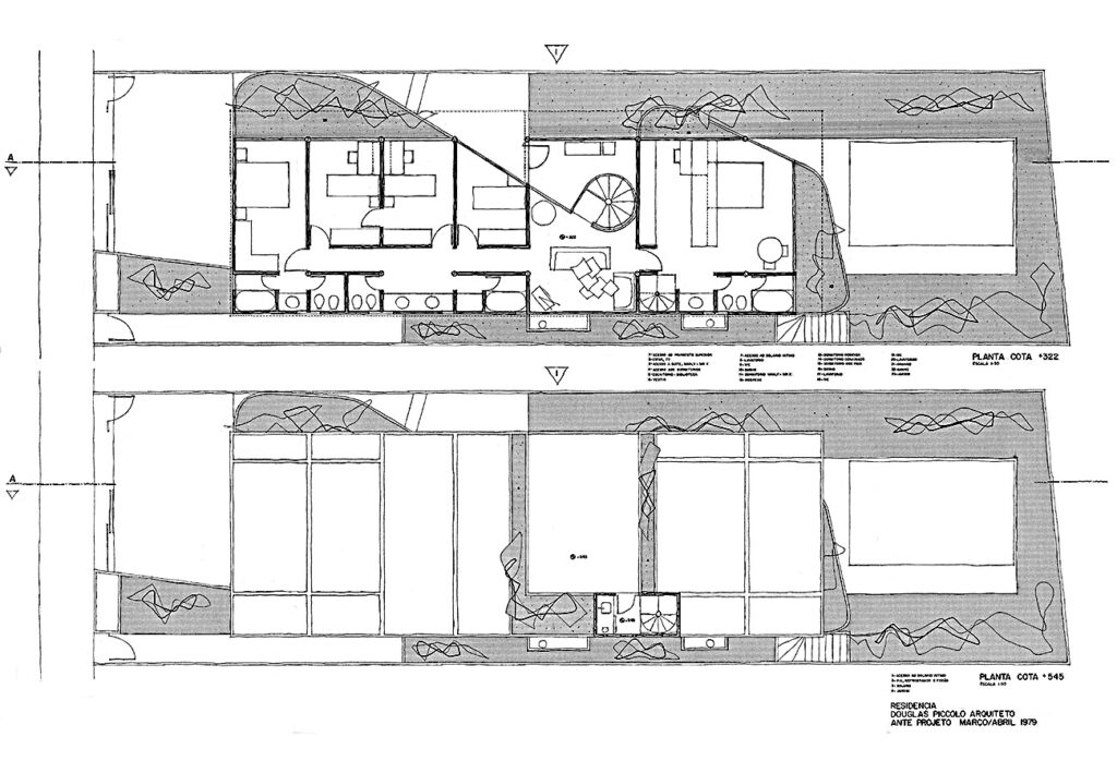
Residencial / Residencias Unifamiliares RESIDÊNCIA MMN Residência MMN Jardim Leonor, São Paulo – SP DESCRIÇÃO Projeto: 1979 Conclusão da Obra: não construído Área do Terreno: 350,00 m2 Área Construída: 290,80 m2