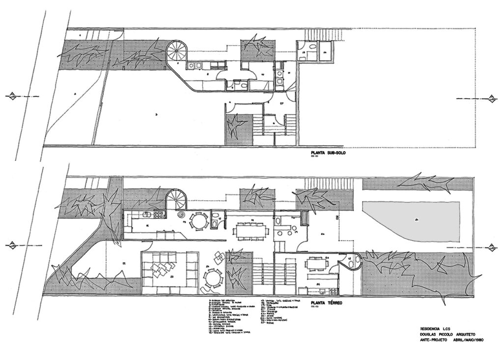
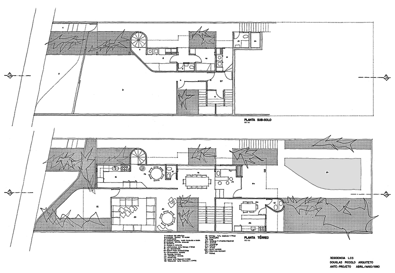
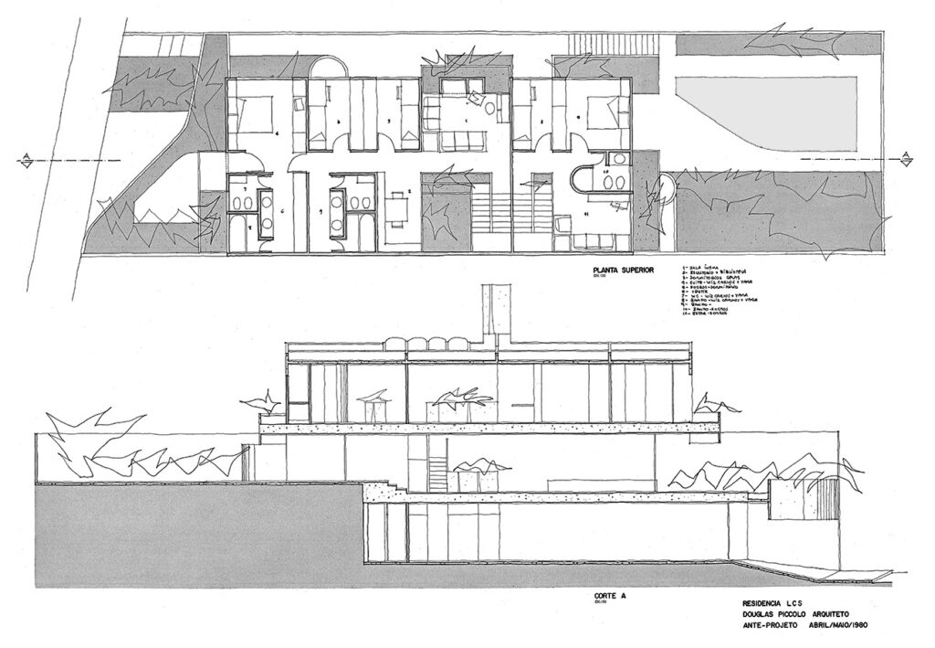
Residencial / Residencias Unifamiliares RESIDÊNCIA LCS Residência LCS Vila Assunção, Santo André – SP DESCRIÇÃO Projeto: 1980 Conclusão da Obra: 1982 Área do Terreno: 350,00 m2 Área Construída: 371,90 m2 Fotos: 08/ 1997