Residencial Joaquim Ferreira Júnior
São Bernardo do Campo – SP
DESCRIÇÃO
- Projeto: 1979/ 1980
- Conclusão da Obra: 1982
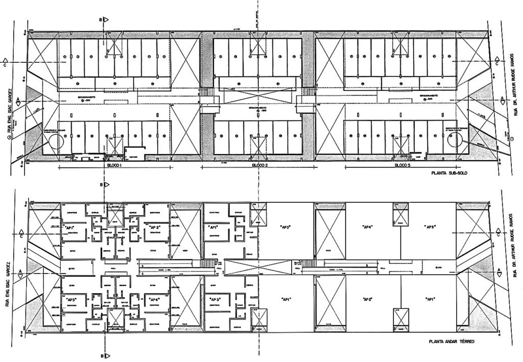
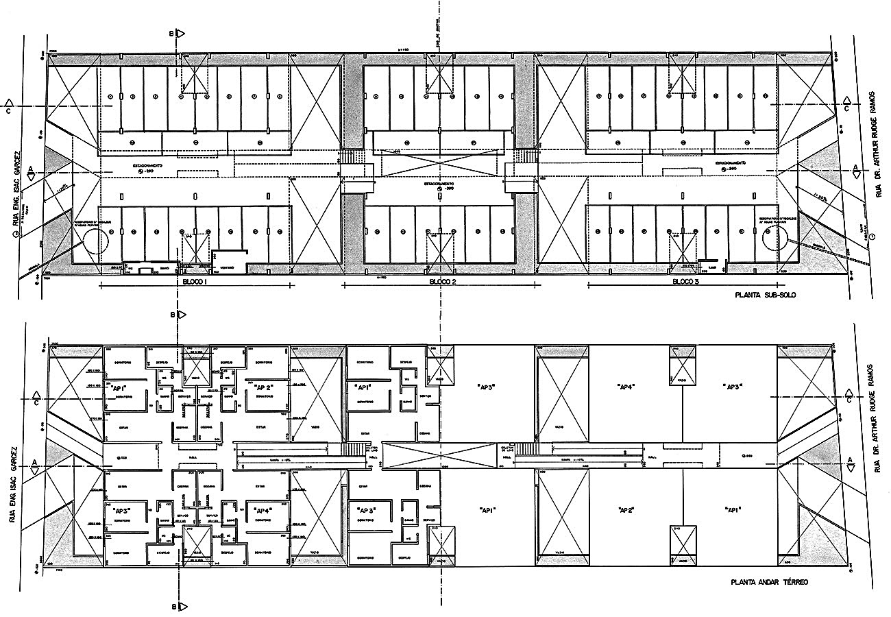
- Área do Terreno: 1.420,00 m2
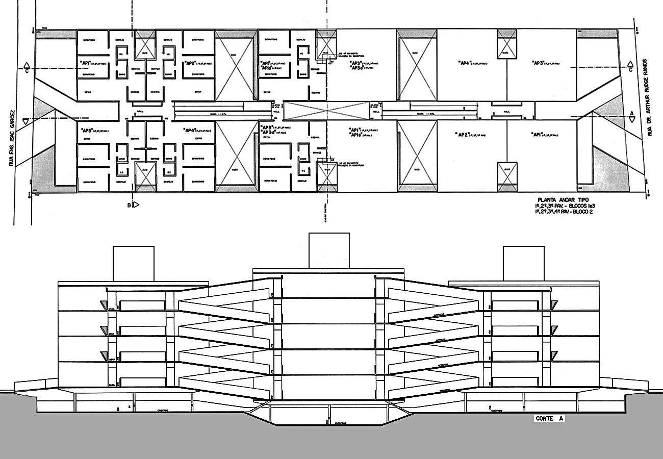
- Área Construída: 4.976,80 m2
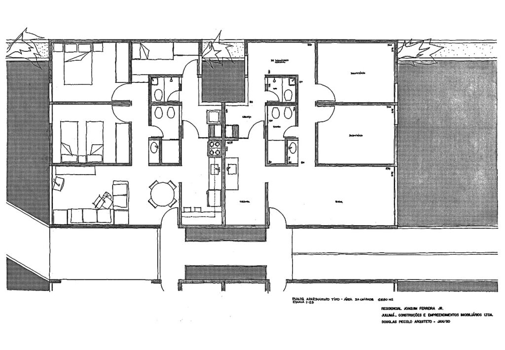
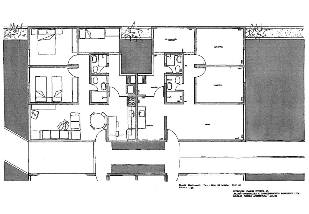
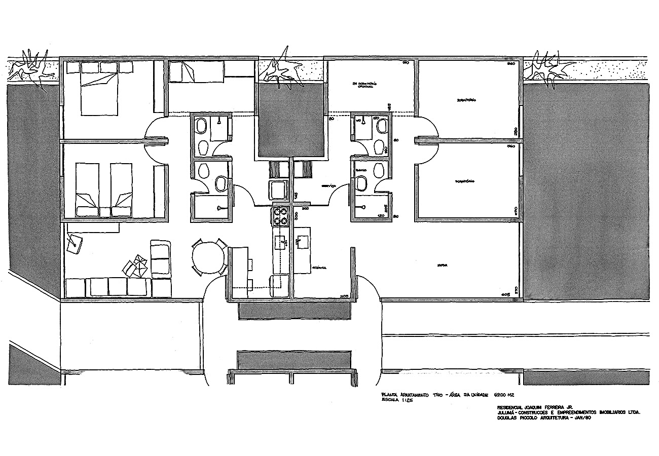
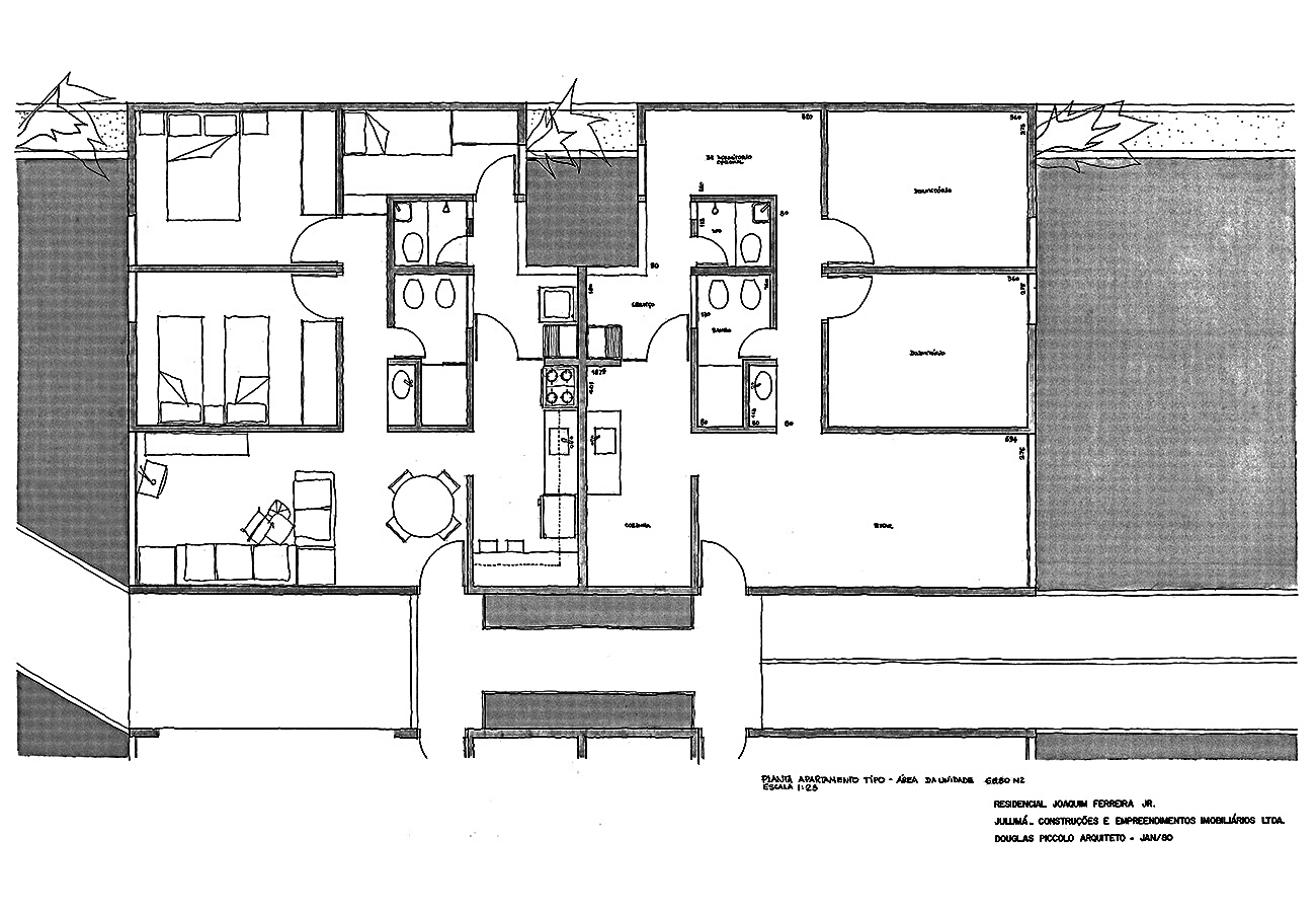
- 52 unidades residenciais (68,80m² ou 69,00m²)
- 52 vagas para autos
- Rua Engenheiro Isac Garcez X Rua Dr Arthur Rudge Ramos, São Bernardo do Campo – SP
- Foi o primeiro prédio estruturado com o subsolo considerando uma modulação baseada nas vagas de autos, com transição para suportar um outro sistema estrutural baseado em alvenaria armada, privilegiando a modulação dos 4 pavimentos das unidades residenciais. Foi também, pelo nosso conhecimento, o primeiro edifício que contemplou rampas no lugar de escadas, melhorando a circulação pois não era para este tipo de empreendimento a necessidade de elevadores e preocupação com acessibilidade.















