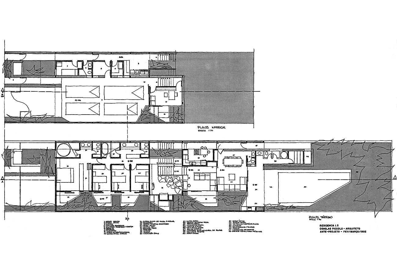
Residencial / Residencias Unifamiliares RESIDÊNCIA LS Residência LS Santo André – SP DESCRIÇÃO Projeto: 1982 Conclusão da Obra: Não construído Área do Terreno: 540,00 m2 Área Construída: 386,72 m2