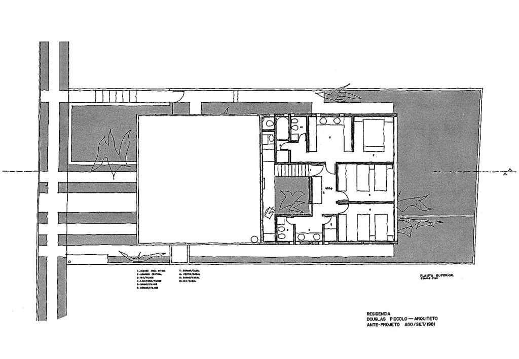
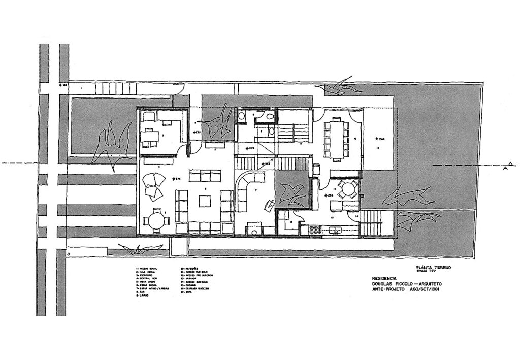
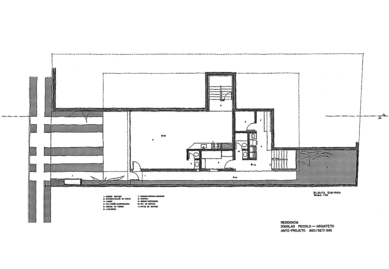
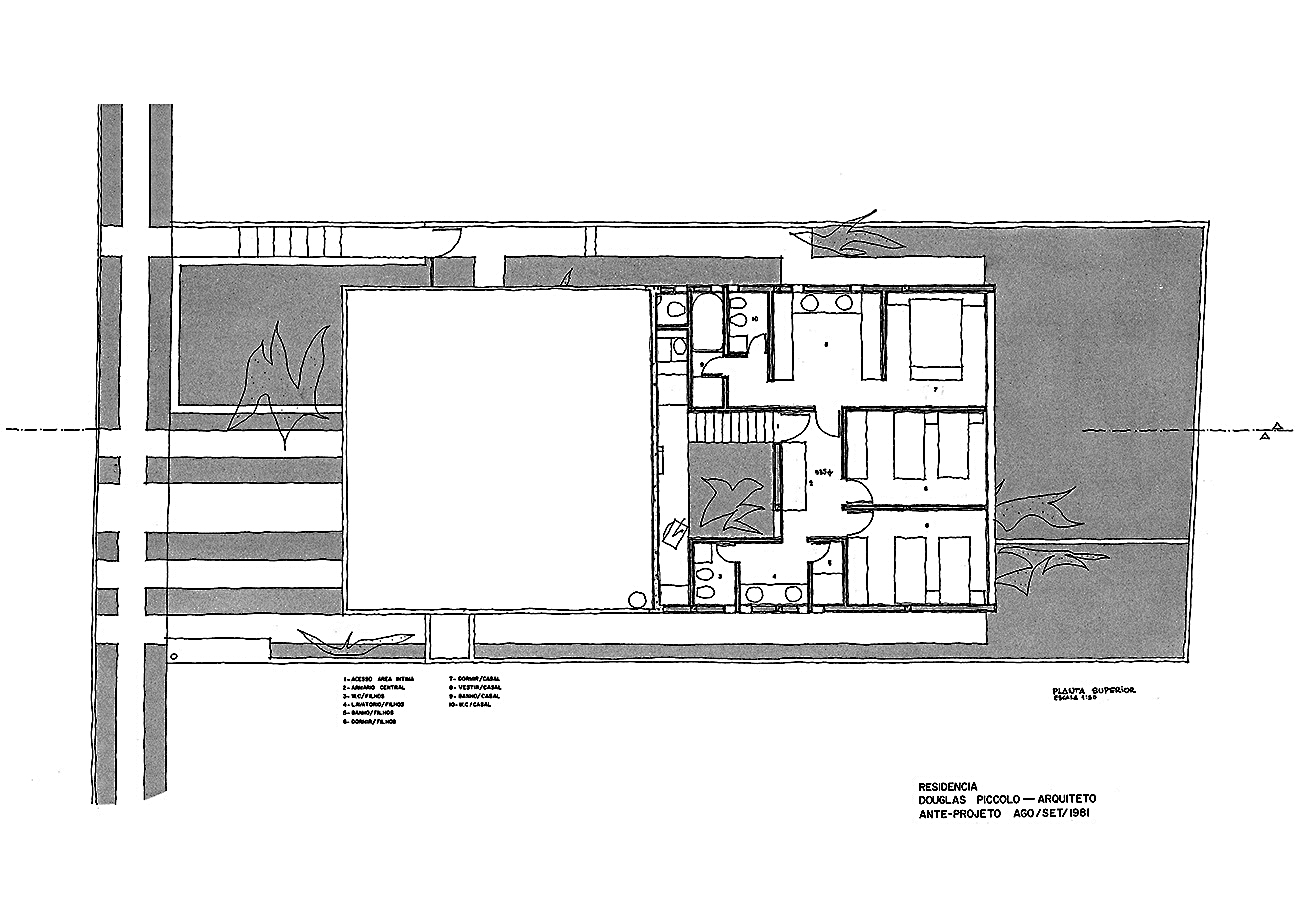
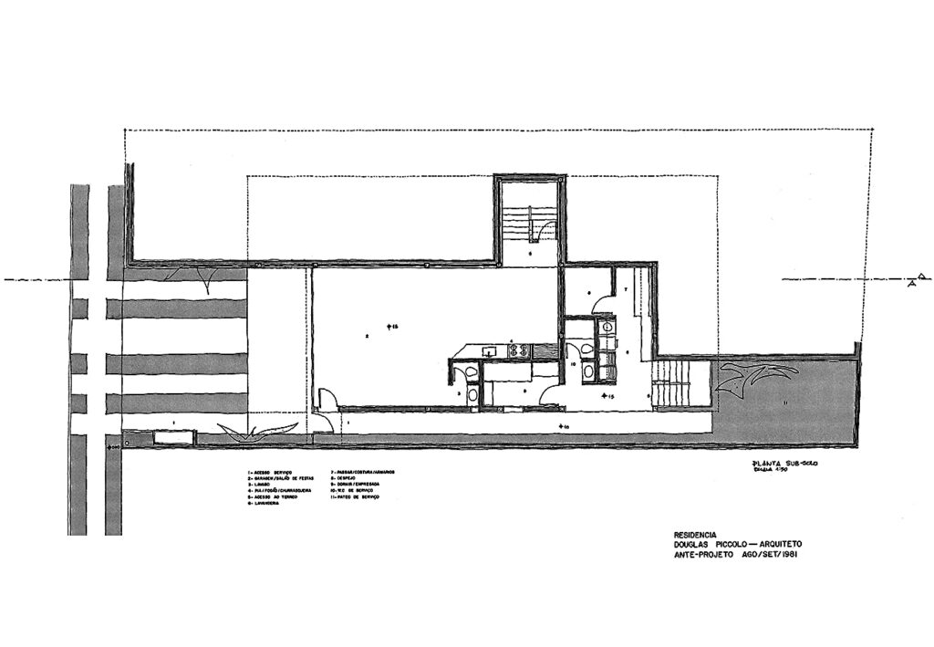
Residencial / Residencias Unifamiliares RESIDÊNCIA CST Residência CST Jardim São Caetano, São Caetano do Sul – SP DESCRIÇÃO Projeto: 1981 Conclusão da Obra: 1983 Área do Terreno: 395,00 m2 Área Construída: 307,63 m2