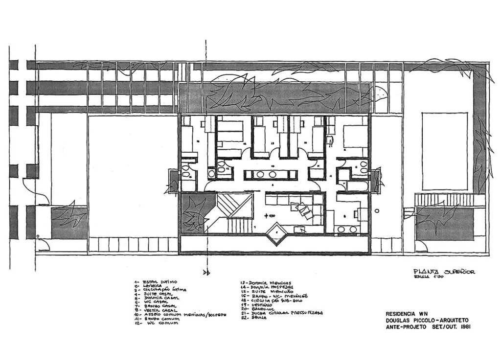
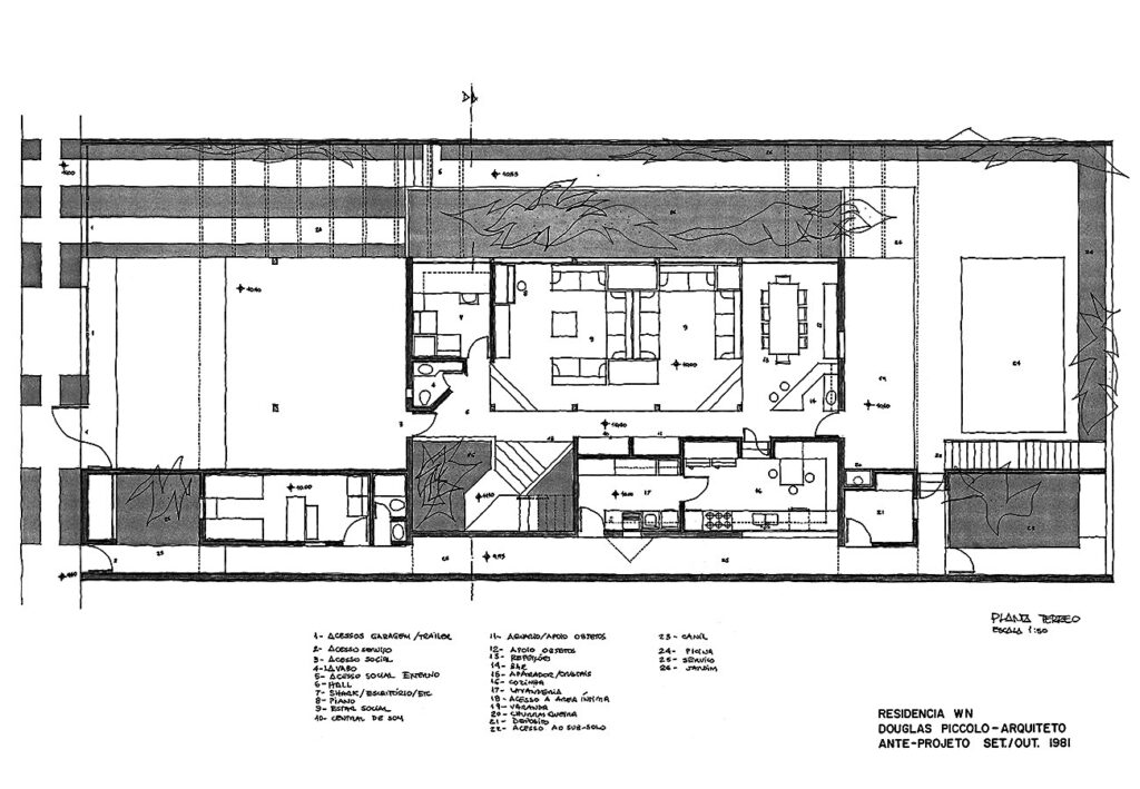
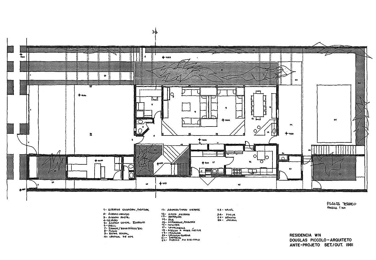
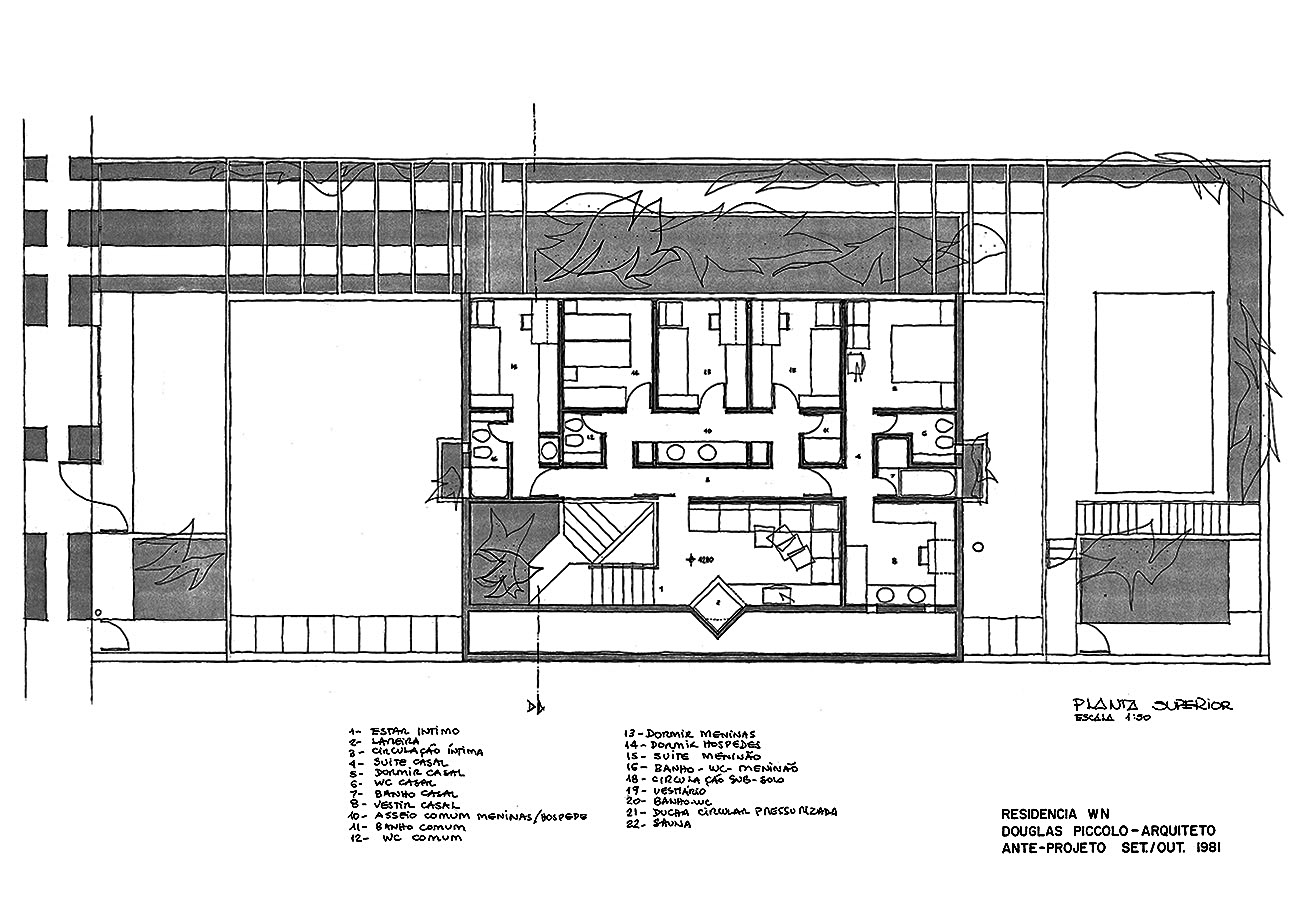
RESIDÊNCIA WN

Residência WN

São Bernardo do Campo – SP

DESCRIÇÃO

  • Projeto: 1981
  • Conclusão da Obra: 1983
  • Área do Terreno: 525,00 m2
  • Área Construída: 382,10 m2